Casa Indipendente in Vendita a Racale, 85'000€, 120 m²

Locali: 2
Bagni: 2
Camere: 1
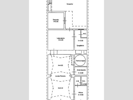
In ottima zona di passaggio, proponiamo in vendita locale commerciale al momento ad uso negozio (ex pizzeria). La soluzione è composta da ingresso in comoda sala principale, retrostante a vista abbiamo zona lavorazione pizze e forno a gas. Le due salette open-space hanno entrambe volte a stella. Dietro troviamo cucina completa, spogliatoio, bagno di servizio, ripostiglio e veranda con vano scala per lastricato solare. Adiacente l'ingresso si apre piccola saletta con secondo bagno e ripostiglio. La soluzione viene venduta con parziale attrezzatura per creare pizzeria, ma con cambio destinazione uso è possibile trasformarla in civile abitazione. Tra le foto è presente una potenziale ristrutturazione a civile abitazione.

Condizioni economiche

Contratto: Vendita
Prezzo: 85'000€
Arredato: No
Libero: Si

Informazioni principali

Tipologia: Casa Indipendente
Città: Racale
Superficie: 120 m²
N° locali: 2
N° bagni: 2
N° Camere: 1
Cucina: Abitabile

Efficenza energetica

Classe energetica:
Anno di costruzione: 1967

Dati inserzione

ID Offrocasa.com: 10833009
Data inserimento: 11/07/2025
Rif. Agenzia: 85fiumeVRG
Rif. Agenzia 85fiumeVRG

Grimaldi Immobiliare

Via Messapica 10 - Ugento (Lecce)
0833/556634
Richiedi Info dal form:
Accetto l'Informativa Privacy


Grimaldi Immobiliare

Via Messapica 10 - Ugento (Lecce)

Casa Indipendente in Vendita a Racale, 85'000€, 120 m²

Chiama
Contatta