Immobile commerciale in Vendita a Cuneo, zona Confreria, 73'600€, 103 m²

Locali: 3
Piano: t
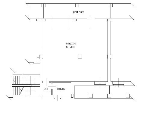
Piena proprietà di unità commerciali di 102,94 mq di superficie utile lorda, sito al piano terra, a pianta rettangolare. Al suo interno risulta così suddiviso: locale commerciale, un deposito, un bagno, un disimpegno, due vetrate, di fronte un’area porticata e nel retro un’area coperta. - Il Prezzo visualizzato è la Base d'Asta in quanto l’immobile è oggetto di esecuzione immobiliare venduto tramite Asta Giudiziaria. - L'immobile aggiudicato, viene venduto libero e sgombro da persone cose ed ipoteche nello stato di fatto e di diritto in cui si trova. - Non rappresentiamo il Tribunale, ma lavoriamo nell'esclusivo interesse del potenziale acquirente per garantire un acquisto sicuro. - I consulenti di ASTE ITALIA ti assisteranno in tutte le attività dell'iter giudiziario dalla visita dell'immobile fino alla consegna chiavi. - Contatta il nostro Servizio Clienti , i nostri operatori sono a disposizione per chiarire i molteplici dubbi per partecipare alle ASTE.

Condizioni economiche

Contratto: Vendita
Prezzo: 73'600€
Arredato: No

Informazioni principali

Tipologia: Immobile commerciale
Città: Cuneo
Zona: Confreria
Superficie: 103 m²
N° locali: 3
Piano: t

Efficenza energetica

Classe energetica: G
Anno di costruzione: 0
Condizioni stabile: In costruzione

Dati inserzione

ID Offrocasa.com: 10832408
Data inserimento: 10/07/2025
Rif. Agenzia: CN11/18L37-0807-25-0915
Rif. Agenzia CN11/18L37-0807-25-0915

Domy Online S.r.l.

Via San Lorenzo 5/41 - Genova
010.8935187
Richiedi Info dal form:
Accetto l'Informativa Privacy


Domy Online S.r.l.

Via San Lorenzo 5/41 - Genova

Immobile commerciale in Vendita a Cuneo, zona Confreria, 73'600€, 103 m²

Chiama
Contatta