Casa Indipendente in Vendita a Zoagli, 550'542€, 128 m²

Locali: 3
Camere: 2
Piano: t
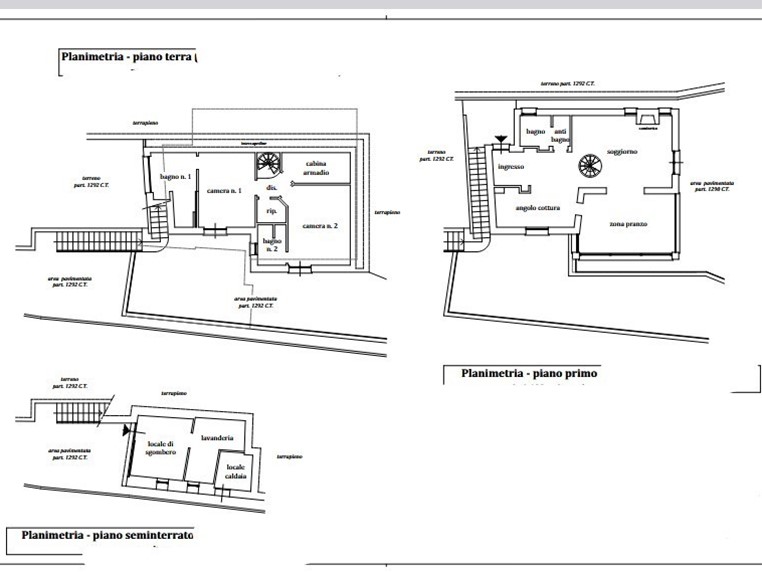
Piena proprietà 1/1 Villetta monofamiliare ubicata a Zoagli (GE) - Località Vallette, civ. 1/A, edificio 4, piano PT-P1 oltre a due terreni circostanti. - Il Prezzo visualizzato è la Base d'Asta in quanto l’immobile è oggetto di esecuzione immobiliare venduto tramite Asta Giudiziaria. - L'immobile aggiudicato, viene venduto libero e sgombro da persone cose ed ipoteche nello stato di fatto e di diritto in cui si trova. - Non rappresentiamo il Tribunale, ma lavoriamo nell'esclusivo interesse del potenziale acquirente per garantire un acquisto sicuro. - I consulenti di ASTE ITALIA ti assisteranno in tutte le attività dell'iter giudiziario dalla visita dell'immobile fino alla consegna chiavi. - Contatta il nostro Servizio Clienti , i nostri operatori sono a disposizione per chiarire i molteplici dubbi per partecipare alle ASTE.

Condizioni economiche

Contratto: Vendita
Prezzo: 550'542€
Arredato: No

Informazioni principali

Tipologia: Casa Indipendente
Città: Zoagli
Superficie: 128 m²
N° locali: 3
N° Camere: 2
Piano: t
N° balconi: 1
Cucina: Angolo cottura
Giardino: Si

Efficenza energetica

Classe energetica: G
Anno di costruzione: 0
Condizioni stabile: Ottimo
Riscaldamento: Autonomo

Caratteristiche

Cantina: Si

Dati inserzione

ID Offrocasa.com: 10831303
Data inserimento: 09/07/2025
Rif. Agenzia: GE419/24LU-0810-25-1330
Rif. Agenzia GE419/24LU-0810-25-1330

ASTE ITALIA

Via Serra 6 Int 7 - Genova (GE)
010.8935240
Richiedi Info dal form:
Accetto l'Informativa Privacy


ASTE ITALIA

Via Serra 6 Int 7 - Genova (GE)

Casa Indipendente in Vendita a Zoagli, 550'542€, 128 m²

Chiama
Contatta