Ufficio in Vendita a Roma, 3'250'000€, 450 m²

Bagni: 2
Piano: 2°
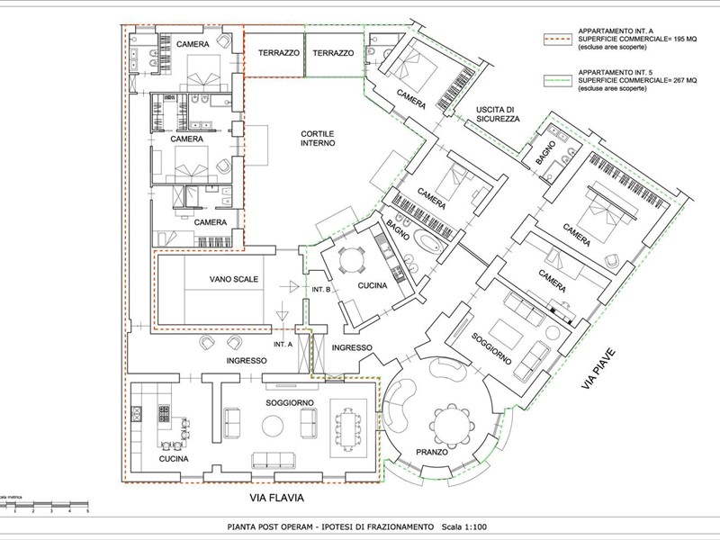
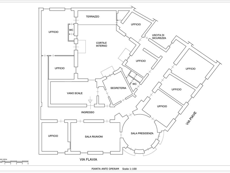
SALARIO/TRIESTE - VIA PIAVE In prestigioso stabile d'epoca, a pochi passi dal MEF e dalla rinomata Piazza Fiume, precisamente in Via Piave, la Grimaldi Immobiliare Piazza Fiume propone in vendita un elegante ufficio di alta rappresentanza accatastato come A/10 (con possibilità di ripristino in uso abitativo). L'immobile, dotato di doppio ingresso, è facilmente, frazionabile in due o piu' unità e gli ampi spazi ariosi e molto luminosi lo rendono la soluzione ideale per uffici e per società di alto livello o per sedi istituzionali. Internamente è composto da reception, ampia sala ovale, sala riunioni, numerose camere uso ufficio, separate tra loro, climatizzazione a pompa di aria calda/fredda per conferire il massimo livello di privacy e comfort. Sono presenti due lunghi corridoi e doppi servizi. Oltre alla metratura di circa 450 mq commerciali vi è anche la presenza di un terrazzo di circa 20 mq. PER MAGGIORI INFORMAZIONI CONTATTARE LA NOSTRA AGENZIA GRIMALDI ROMA PIAZZA FIUME ALLO 06.89612816- 3713149766 DAL LUNEDI' AL VENERDI' DALLE 9:00 ALLE 13:00 E DALLE 15:00 ALLE 19:00 E IL SABATO DALLE 9:00 ALLE 13:00 OPPURE INVIANDO UN'EMAIL A grimaldipiazzafiume@gmail.com La casa è il nostro mondo, oggi più di prima. Richiedici un report personalizzato con il valore di mercato della tua casa https://valutazioni.grimaldifranchising.it/agenzia/roma-piazza-fiume

Condizioni economiche

Contratto: Vendita
Prezzo: 3'250'000€
Spese condominiali: 200€

Informazioni principali

Tipologia: Ufficio
Città: Roma
Superficie: 450 m²
N° bagni: 2
Piano:

Efficenza energetica

Classe energetica: 2015-G
Ipe: 1.00 kwm2
Anno di costruzione: 0

Caratteristiche

Ascensore: Si

Dati inserzione

ID Offrocasa.com: 10831073
Data inserimento: 09/07/2025
Rif. Agenzia: Prestigioso ufficioVCU
Rif. Agenzia Prestigioso ufficioVCU

Grimaldi Immobiliare

Via Ancona 42/44 - Roma
0689612816
Richiedi Info dal form:
Accetto l'Informativa Privacy


Grimaldi Immobiliare

Via Ancona 42/44 - Roma

Ufficio in Vendita a Roma, 3'250'000€, 450 m²

Chiama
Contatta