Quadrilocale in Vendita a Verucchio, zona VILLA VERUCCHIO, 355'000€, 151 m², con Box

Locali: 4
Camere: 2
Piano: 1
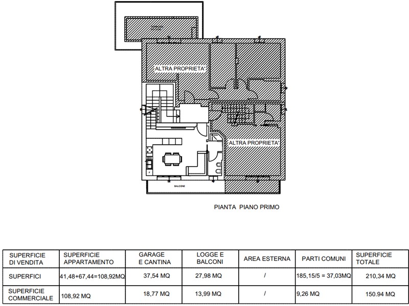
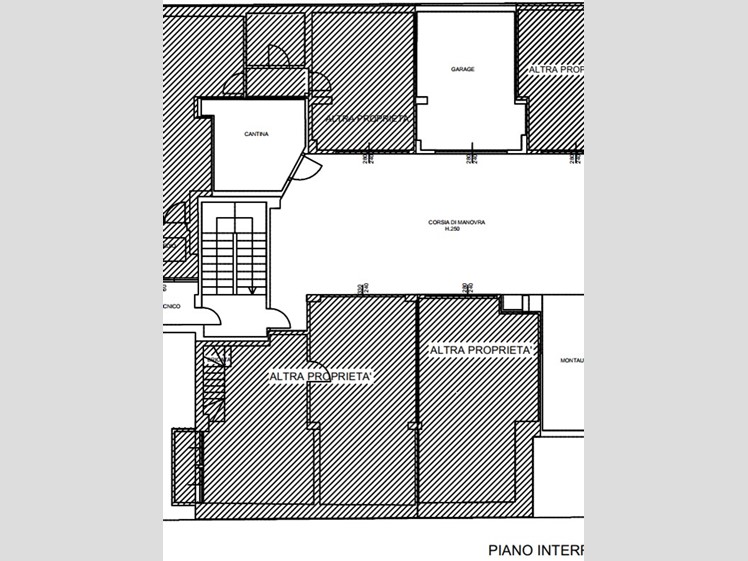
CENTRO di VILLA VERUCCHIO - Immobile moderno e funzionale in consegna a fine 2025. In elegante complesso residenziale di nuova costruzione, composto da sole 5 unità abitative, proponiamo in vendita spazioso e luminoso appartamento Trilocale al piano primo e disposto su 2 livelli dalle ottime metrature e fornito di ampi terrazzi ideali per zona relax. ? Dettagli Immobile: Superficie appartamento: 108,92 mq disposti in ampia e luminosa zona living al piano primo da cui si accede ad ampio balcone e da 1 bagno finestrato mentre al piano secondo 2 camere da letto matrimoniali entrambe fornite di ampi terrazzi. Completa la soluzione 1 bagno finestrato. Superficie garage e cantina: 37,54 mq con accesso da scala interna condominiale e da montauto. Terrazzi: 27,98 mq a cui si accede da ampia porta finestra delle camere da letto Parti comuni: 37,03 mq. ?? Palazzina dotata di pannelli solari termici; ?? Riscaldamento a pavimento con pannelli radianti; ?? Ventilazione meccanica; ?? Predisposizione per pompe di calore e climatizzazione; ?? Classe energetica A2, per un elevato risparmio energetico. Per informazioni e visite: RIF: 3693-1 Contattare Marco Rocchi al 345 059 0584 oppure l'agenzia al 0541 626435

Condizioni economiche

Contratto: Vendita
Prezzo: 355'000€
Arredato: No

Informazioni principali

Tipologia: Quadrilocale
Città: Verucchio
Zona: VILLA VERUCCHIO
Superficie: 151 m²
N° locali: 4
N° Camere: 2
Piano: 1
Box: Si

Efficenza energetica

Classe energetica: A2
Anno di costruzione: 2025
Condizioni stabile: In costruzione

Dati inserzione

ID Offrocasa.com: 10830393
Data inserimento: 08/07/2025
Rif. Agenzia: 3693-1
Rif. Agenzia 3693-1

Aimmobiliare srl s

via Ugo Braschi, 47 - Santarcangelo di Romagna (RN)
0541.770608
Richiedi Info dal form:
Accetto l'Informativa Privacy


Aimmobiliare srl s

via Ugo Braschi, 47 - Santarcangelo di Romagna (RN)

Quadrilocale in Vendita a Verucchio, zona VILLA VERUCCHIO, 355'000€, 151 m², con Box

Chiama
Contatta