Appartamento in Vendita a Verucchio, zona VILLA VERUCCHIO, 355'000€, 138 m², con Box

Locali: 5
Camere: 3
Piano: t
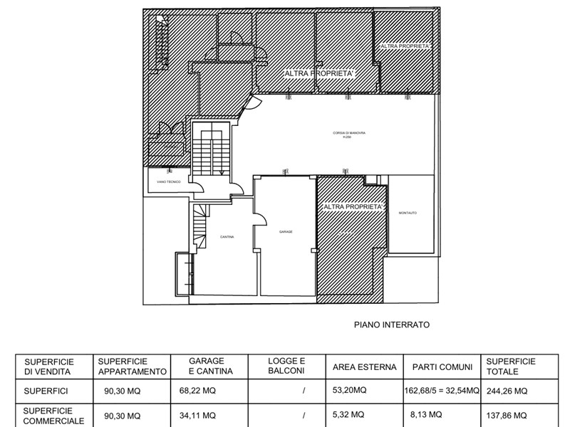
CENTRO di VILLA VERUCCHIO - Immobile moderno e funzionale in consegna a fine 2025. In elegante complesso residenziale di nuova costruzione, composto da sole 5 unità abitative, proponiamo in vendita spazioso e luminoso appartamento Quadrilocale al piano terra fronte strada dalle ottime metrature con accesso comodo e diretto e ampi spazi esterni pavimentati pertinenziali, ideali per zona relax. ? Dettagli Immobile: Superficie appartamento: 90,30 mq disposti in ampia e luminosa zona living, 2 camere da letto singole e 1 matrimoniale e due bagni di cui 1 finestrato. Superficie garage doppio e cantina: 68,22 mq con accesso da scala interna all'appartamento e da montauto. Area esterna: 53,20 mq a cui si accede sia dalla zona living e dalle camere da letto e sia da ingresso indipendente. Parti comuni: 32,54 mq. ?? Palazzina dotata di pannelli solari termici; ?? Riscaldamento a pavimento con pannelli radianti; ?? Ventilazione meccanica; ?? Predisposizione per pompe di calore e climatizzazione; ?? Classe energetica A2, per un elevato risparmio energetico. Per informazioni e visite: RIF: 4503 Contattare Marco Rocchi al 345 059 0584 oppure l'agenzia al 0541 626435

Condizioni economiche

Contratto: Vendita
Prezzo: 355'000€
Arredato: No

Informazioni principali

Tipologia: Appartamento
Città: Verucchio
Zona: VILLA VERUCCHIO
Superficie: 138 m²
N° locali: 5
N° Camere: 3
Piano: t
Box: Si

Efficenza energetica

Classe energetica: A2
Anno di costruzione: 2025
Condizioni stabile: In costruzione

Caratteristiche

Cantina: Si

Dati inserzione

ID Offrocasa.com: 10830390
Data inserimento: 08/07/2025
Rif. Agenzia: 4503
Rif. Agenzia 4503

Aimmobiliare srl s

via Ugo Braschi, 47 - Santarcangelo di Romagna (RN)
0541.770608
Richiedi Info dal form:
Accetto l'Informativa Privacy


Aimmobiliare srl s

via Ugo Braschi, 47 - Santarcangelo di Romagna (RN)

Appartamento in Vendita a Verucchio, zona VILLA VERUCCHIO, 355'000€, 138 m², con Box

Chiama
Contatta