Terreno edificabile in Vendita a Cori, 290'000€, 1960 m²

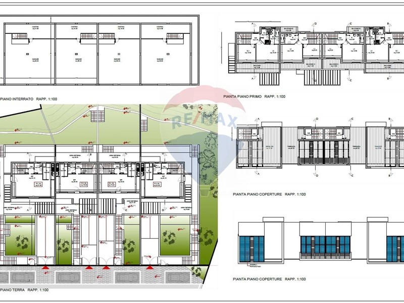
Immergiti nella bellezza di Cori, città ricca di storia e panorami mozzafiato, e scopri questo terreno edificabile eccezionale. Situato in una posizione privilegiata, questo terreno scosceso di 1.960 metri quadrati offre un'opportunità unica per costruire la casa dei tuoi sogni su una collina con vista panoramica.Con una superficie edificabile di 1.277,34 metri quadrati, questo terreno permette di realizzare una serie di villini su due livelli, con ampi spazi esterni come giardini e terrazze. Immagina di vivere in una casa circondata dalla natura incontaminata, con la tranquillità della campagna laziale e una vista spettacolare sulle colline circostanti. Un valore aggiunto di questa proprietà è il progetto già approvato, che consente di risparmiare tempo e denaro nella fase di pianificazione e costruzione. Inoltre, sono stati definiti i tempi per la firma della convenzione urbanistica (20.02.2025) e la stima per il rilascio del permesso di costruire (Luglio 2025), offrendo una chiara visione del processo di sviluppo.Il terreno si trova in una zona residenziale tranquilla e ben collegata, il che lo rende ideale per chi desidera vivere in un ambiente sereno ma non isolato. Cori offre anche una vasta gamma di servizi e attività, tra cui ristoranti, negozi, eventi culturali e molto altro.Non lasciarti sfuggire questa opportunità unica di acquistare un terreno edificabile con queste caratteristiche a Cori. Contattaci oggi stesso per maggiori informazioni e per organizzare una visita! .

Condizioni economiche

Contratto: Vendita
Prezzo: 290'000€
Libero: Si

Informazioni principali

Tipologia: Terreno edificabile
Città: Cori
Superficie: 1960 m²

Efficenza energetica

Classe energetica:

Dati inserzione

ID Offrocasa.com: 10828826
Data inserimento: 05/07/2025
Rif. Agenzia: 42001021-7
Rif. Agenzia 42001021-7

RE/MAX Premier

Via di Porta Pertusa, 4 - Roma
062111592
Richiedi Info dal form:
Accetto l'Informativa Privacy


RE/MAX Premier

Via di Porta Pertusa, 4 - Roma

Terreno edificabile in Vendita a Cori, 290'000€, 1960 m²

Chiama
Contatta