Quadrilocale in Vendita a Mugnano di Napoli, 215'000€, 100 m²

Locali: 4
Bagni: 2
Camere: 3
Piano: 2°
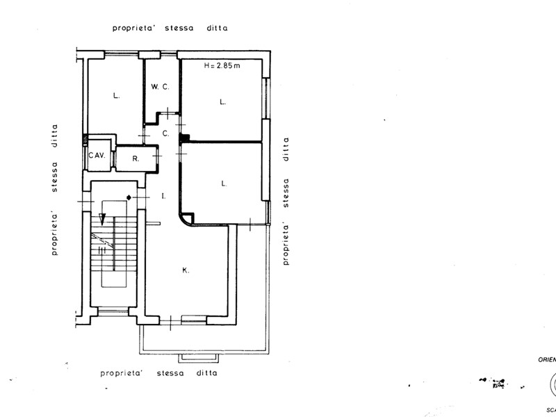
Via G. D'Annunzio - Mugnano di Napoli In una traversa di Via Napoli, cuore pulsante di Mugnano di Napoli, proponiamo in vendita una soluzione abitativa ideale per chi cerca comfort, spazio e vicinanza a tutti i servizi, senza rinunciare alla tranquillità. L'immobile, posto in un contesto sereno e ben curato, accoglie con un ampio ingresso nella zona giorno, dove il soggiorno con cucina a vista e camino crea un ambiente caldo e conviviale, perfetto per i momenti in famiglia o con gli amici. Da qui si accede a un ampio balcone angolare che abbraccia gran parte della casa, garantendo un ottima esposizione al sole. La zona notte, ben separata grazie a un comodo disimpegno, ospita tre camere da letto spaziose, un bagno con vasca e una lavanderia funzionale, che funge anche da pratico ripostiglio. La casa è servita da riscaldamento autonomo alimentato a gas metano, per garantire efficienza e autonomia. Completano la proprietà un posto auto coperto, fondamentale in una zona centrale e ben servita. Un'abitazione completa, pensata per chi desidera vivere in una zona strategica, a pochi minuti dal centro ma in un angolo di pace. Per maggiori informazioni su questo annuncio puoi contattarci anche tramite WHATSAPP inviando un messaggio al numero 3512319735 oppure chiamaci al numero 081.586.73.49 #GabettiMugnano. Un nostro consulente sarà sempre in linea per rispondere alle tue domande!! Trovare casa non è stato #MaiCosiFacile!

Condizioni economiche

Contratto: Vendita
Prezzo: 215'000€
Arredato: No
Spese condominiali: 15€

Informazioni principali

Tipologia: Quadrilocale
Città: Mugnano di Napoli
Superficie: 100 m²
N° locali: 4
N° bagni: 2
N° Camere: 3
Piano:
Posto auto: Si
Cucina: Abitabile

Efficenza energetica

Classe energetica:
Climatizzatore: Si
Anno di costruzione: 1980
Riscaldamento: autonomo

Dati inserzione

ID Offrocasa.com: 10827185
Data inserimento: 05/07/2025
Rif. Agenzia: MCV178VRG
Rif. Agenzia MCV178VRG

Gabetti

Via Giorgio Perlasca 10 - Mugnano di Napoli (Napoli)
081/5867349
Richiedi Info dal form:
Accetto l'Informativa Privacy


Gabetti

Via Giorgio Perlasca 10 - Mugnano di Napoli (Napoli)

Quadrilocale in Vendita a Mugnano di Napoli, 215'000€, 100 m²

Chiama
Contatta