Casa Semi Indipendente in Vendita a Reano, 140'250€, 351 m², con Box

Locali: 10+
Camere: 3
Piano: s
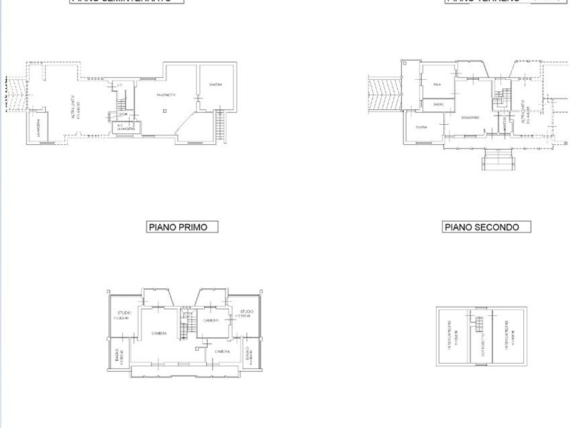
Porzione di villa bifamiliare su quattro livelli collegati da scala interna e composta da un appartamento, un’autorimessa e giardino comune. Appartamento composto da: al piano terreno ingresso comune, soggiorno, cucina, sala e bagno, oltre a tre terrazzi; al piano primo tre camere da letto, due studi e due bagni, tre terrazzi; al piano sottotetto, un locale ad uso sottotetto e due intercapedini; al piano seminterrato, centrale termica, disimpegno, w.c., due lavanderie, tavernetta e cantina. Autorimessa. - Il Prezzo visualizzato è la Base d'Asta in quanto l’immobile è oggetto di esecuzione immobiliare venduto tramite Asta Giudiziaria. - L'immobile aggiudicato, viene venduto libero e sgombro da persone cose ed ipoteche nello stato di fatto e di diritto in cui si trova. - Non rappresentiamo il Tribunale, ma lavoriamo nell'esclusivo interesse del potenziale acquirente per garantire un acquisto sicuro. - I consulenti di ASTE ITALIA ti assisteranno in tutte le attività dell'iter giudiziario dalla visita dell'immobile fino alla consegna chiavi. - Contatta il nostro Servizio Clienti , i nostri operatori sono a disposizione per chiarire i molteplici dubbi per partecipare alle ASTE.

Condizioni economiche

Contratto: Vendita
Prezzo: 140'250€
Arredato: No

Informazioni principali

Tipologia: Casa Semi Indipendente
Città: Reano
Superficie: 351 m²
N° locali: 10+
N° Camere: 3
Piano: s
Box: Si
Cucina: Abitabile

Efficenza energetica

Classe energetica: F
Anno di costruzione: 0
Condizioni stabile: Buono
Riscaldamento: Centralizzato

Caratteristiche

Cantina: Si

Dati inserzione

ID Offrocasa.com: 10826780
Data inserimento: 04/07/2025
Rif. Agenzia: TO316/24LU-1410-25-1500
Rif. Agenzia TO316/24LU-1410-25-1500

ASTE ITALIA

Via Serra 6 Int 7 - Genova (GE)
010.8935240
Richiedi Info dal form:
Accetto l'Informativa Privacy


ASTE ITALIA

Via Serra 6 Int 7 - Genova (GE)

Casa Semi Indipendente in Vendita a Reano, 140'250€, 351 m², con Box

Chiama
Contatta