Negozio in Vendita a Pace del Mela, 600'000€, 772 m²

Piano: Terra
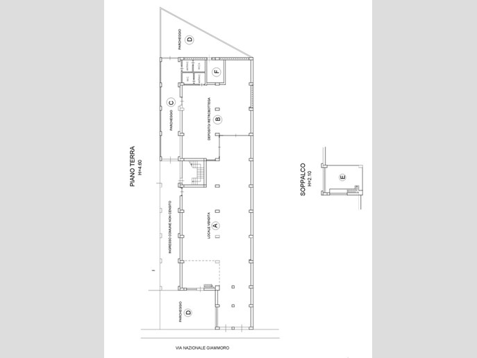
#prof353 Via Statale, 238 - Giammoro fraz. Pace del Mela (ME) A Giammoro, proponiamo la vendita di un ampio locale commerciale, categoria D8, di circa 772 mq complessivi, suddivisi in 150 mq di area commerciale (C1) per accogliere al meglio i clienti, 350 mq di retrobottega/magazzino, ideale per stoccaggio e gestione logistica oltre ampio parcheggio privato e area di carico e scarico, perfetti per qualsiasi tipo di attività. Posizione strategica: il locale si trova in zona Nazionale a Giammoro, in area ad alta visibilità e intenso passaggio veicolare e pedonale, garantendo un flusso costante di potenziali clienti. Ottimo per supermercati, showroom, attività di ingrosso, centri logistici o altre attività commerciali che necessitano di spazi ampi e funzionali. Caratteristiche principali: grande metratura complessiva, accesso facilitato per carico/scarico merci, parcheggio, visibilità su strada principale e vicinanza a servizi, arterie stradali e centri abitati. Non perdere l'occasione di realizzare il tuo progetto! Contattaci per una visita o per ricevere maggiori informazioni: un consulente dedicato sarà a tua completa disposizione! Vieni a trovarci presso la nostra agenzia in Via Marina Garibaldi, 61 - Milazzo (ME) Tel. & Whatsapp: 0909031774

Condizioni economiche

Contratto: Vendita
Prezzo: 600'000€

Informazioni principali

Tipologia: Negozio
Città: Pace del Mela
Superficie: 772 m²
Piano: Terra

Efficenza energetica

Classe energetica:
Anno di costruzione: 0

Dati inserzione

ID Offrocasa.com: 10825920
Data inserimento: 03/07/2025
Rif. Agenzia: #prof353VCG
Rif. Agenzia #prof353VCG

Professionecasa

Prossima Apertura - Milazzo (Messina)
0909031774
Richiedi Info dal form:
Accetto l'Informativa Privacy


Professionecasa

Prossima Apertura - Milazzo (Messina)

Negozio in Vendita a Pace del Mela, 600'000€, 772 m²

Chiama
Contatta