Villetta a schiera in Vendita a Roma, 280'000€, 110 m², con Box

Locali: 3
Bagni: 3
Camere: 3
Piano: Su più livelli
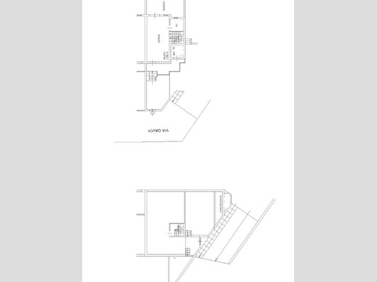
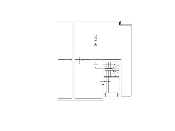
L'agenzia immobiliare GABETTI ROMA BRAVETTA propone in vendita in zona Spallette e più precisamente in via Gavoi, un villino a schiera edificato nel 2010 che si sviluppa su tre livelli. Questa proprietà vanta una serie di comfort e caratteristiche che la rendono un'opzione ideale per chi cerca una soluzione abitativa di qualità. La villa dispone di un giardino privato, un box auto, una cantina e un ripostiglio, offrendo ampi spazi per il relax e lo stoccaggio. Gli interni sono stati ristrutturati e si presentano in ottime condizioni. La cucina a vista e il soggiorno doppio garantiscono ambienti luminosi e accoglienti. Le 3 camere da letto, i 2 terrazzi e il balcone rappresentano ulteriori spazi per godersi la tranquillità della zona, inoltre la presenza di un impianto di climatizzazione assicura il massimo comfort in ogni stagione. La tripla esposizione garantisce luminosità costante in tutta la casa. Contattaci per organizzare una visita e scoprire tutte le potenzialità di questo immobile unico nel suo genere. Per ulteriori informazioni o per fissare un appuntamento si prega di contattare i seguenti numeri: 06.27.53.829-392.08.76.185. Questa descrizione ha valore puramente indicativo e non costituisce elemento contrattuale.

Condizioni economiche

Contratto: Vendita
Prezzo: 280'000€
Arredato: No
Spese condominiali: 40€

Informazioni principali

Tipologia: Villetta a schiera
Città: Roma
Superficie: 110 m²
N° locali: 3
N° bagni: 3
N° Camere: 3
Piano: Su più livelli
Box: Si
Cucina: Abitabile
Giardino: Privato

Efficenza energetica

Classe energetica: 2015-E
Ipe: 119.50 kwm2
Climatizzatore: Si
Anno di costruzione: 2010
Riscaldamento: autonomo

Caratteristiche

Cantina: Si
Videocitofono: Si

Dati inserzione

ID Offrocasa.com: 10818692
Data inserimento: 25/06/2025
Rif. Agenzia: Cod. rif 3242685VRG
Rif. Agenzia Cod. rif 3242685VRG

Gabetti

Via dei Feltreschi 21 - Roma
06.47549473
Richiedi Info dal form:
Accetto l'Informativa Privacy


Gabetti

Via dei Feltreschi 21 - Roma

Villetta a schiera in Vendita a Roma, 280'000€, 110 m², con Box

Chiama
Contatta