Terreno edificabile in Vendita a Perugia, zona Periferia, 79'000€, 4732 m²

Locali: 1
Piano: t
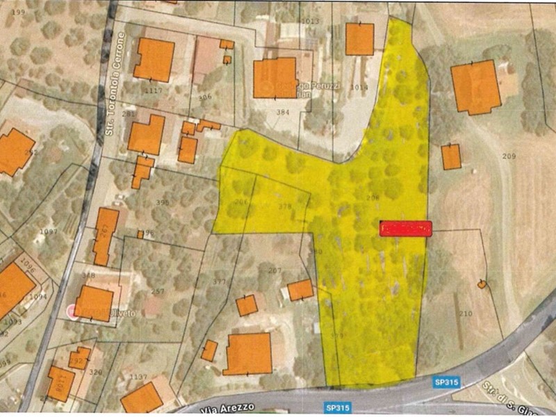
FONTIGNANO : tra Perugia e Citta' Della Pieve (che distano meno di 20 minuti), proprio in entrata (venendo da Perugia) nel piccolo borgo umbro di Fontignano, che custodisce le spoglie del "divin pittore" seicentesco, Pietro Vannucci, detto "il perugino", proponiamo in vendita questo bel lotto di terreno di oltre 4700 mq, di cui circa 1250 edificabili (b3), per una volumetria abitativa di 930 metri cubi (oltre 200 mq calpestabili). Bellissima e comoda posizione dominante, con servizi e Strada Pievaiola vicinissimi. Presenti oltre 70 piante di ulivo all'interno del lotto. Prezzo interessante! ( Rif. T51R ) .

Condizioni economiche

Contratto: Vendita
Prezzo: 79'000€
Arredato: No

Informazioni principali

Tipologia: Terreno edificabile
Città: Perugia
Zona: Periferia
Vicinanze: Tranquilla
Superficie: 4732 m²
N° locali: 1
Piano: t

Efficenza energetica

Classe energetica: NA
Anno di costruzione: 0

Dati inserzione

ID Offrocasa.com: 10818295
Data inserimento: 24/06/2025
Rif. Agenzia: T51R
Rif. Agenzia T51R

Grifoconsult Valigi Immobiliare

Piazza Gabriele d'Annunzio, 11 - Perugia (PG)
075.30000
Richiedi Info dal form:
Accetto l'Informativa Privacy


Grifoconsult Valigi Immobiliare

Piazza Gabriele d'Annunzio, 11 - Perugia (PG)

Terreno edificabile in Vendita a Perugia, zona Periferia, 79'000€, 4732 m²

Chiama
Contatta