Bilocale in Vendita a Palermo, 210'000€, 72 m²

Locali: 2
Bagni: 1
Piano: 1°
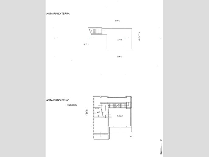
Via Aspasia - Delizioso ampio bivani totalmente ristrutturato in villa di nuova costruzione, composto da ingresso piano terra su corte privata adibita a parcheggio, da scala si accede al primo piano: ingresso su disimpegno, soggiorno con cucina a vista e doppio balcone, 1 camera da letto con balcone, 1 wcd. Da scala esterna si accede alla terrazza. Ottime rifiniture, pavimenti gres effetto parquet, infissi vetrocamera, riscaldamento autonomo e pompe di calore. Libero. Richiesta ? 210.000

Condizioni economiche

Contratto: Vendita
Prezzo: 210'000€

Informazioni principali

Tipologia: Bilocale
Città: Palermo
Superficie: 72 m²
N° locali: 2
N° bagni: 1
Piano:
Posto auto: Si

Efficenza energetica

Classe energetica:
Climatizzatore: Si
Anno di costruzione: 0
Riscaldamento: autonomo

Dati inserzione

ID Offrocasa.com: 10816477
Data inserimento: 20/06/2025
Rif. Agenzia: Cod. rif M24V25VRG
Rif. Agenzia Cod. rif M24V25VRG

Grimaldi Immobiliare

Via R. Wagner 2/C - Palermo
0916090414
Richiedi Info dal form:
Accetto l'Informativa Privacy


Grimaldi Immobiliare

Via R. Wagner 2/C - Palermo

Bilocale in Vendita a Palermo, 210'000€, 72 m²

Chiama
Contatta