Appartamento in Vendita a Fermo, 145'000€, 79 m²

Locali: 5
Bagni: 1
Camere: 3
Piano: 2
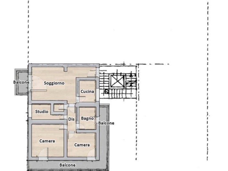
L'Immobiliare Unika propone in esclusiva di vendita nel Comune di Fermo (FM), nel quartiere Tirassegno, comodo appartamento di circa 79 mq posto al piano secondo di edificio residenziale, libero su tre lato e servito da ascensore. L'immobile si compone di ingresso, grande soggiorno con accesso servito da balcone, angolo cottura separato, disimpegno notte che comprende una camera matrimoniale, seconda camera, entrambe servite da balcone, studio, ripostiglio attualmente adibito a lavanderia e bagno finestrato con affaccio al balcone perimetrale. Completa la proprietà comodo posto auto nella corte condominiale. Soluzione abitativa in buone condizioni d'uso, ideale sia per uso residenziale che per investimento. Disponibile da subito, in posizione eccellente, a due passi dal centro del Paese e da tutti i servizi. Classe energetica "in fase di valutazione". Rif. VV343. Immobiliare Unika 0734 300555 - 3271687900.

Condizioni economiche

Contratto: Vendita
Prezzo: 145'000€
Arredato: Parzialmente arredato
Spese condominiali: 40€
Libero: Si

Informazioni principali

Tipologia: Appartamento
Città: Fermo
Superficie: 79 m²
N° locali: 5
N° bagni: 1
N° Camere: 3
Piano: 2
Esposizione: Nord-Ovest

Efficenza energetica

Classe energetica:
Condizioni stabile: Buono
Riscaldamento: Autonomo

Caratteristiche

Ascensore: Si

Dati inserzione

ID Offrocasa.com: 10810351
Data inserimento: 16/06/2025
Rif. Agenzia: VV343
Rif. Agenzia VV343

Unika Immobiliare

Via Sacconi, 41 - Porto San Giorgio (Fermo)
0734300555
Richiedi Info dal form:
Accetto l'Informativa Privacy


Unika Immobiliare

Via Sacconi, 41 - Porto San Giorgio (Fermo)

Appartamento in Vendita a Fermo, 145'000€, 79 m²

Chiama
Contatta