Ufficio in Vendita a Caserta, 490'000€, 180 m²

Locali: 4
Bagni: 2
Piano: Soppalco
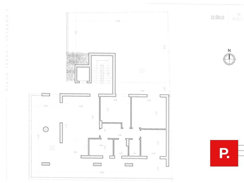
Caserta via Tescione prossimità centro e ospedale in fabbricato di nuova costruzione proponiamo in vendita un ufficio al piano rialzato con annesso deposito di 80 mq L'ufficio è suddiviso in quattro vani e doppio servizio con terrazzi di 160. Dispone inoltre di garage. Visionabile previo appuntamento Seguici sui nostri canali social Facebook : Immobiliare Petrella Instagram : petrella_immobiliare

Condizioni economiche

Contratto: Vendita
Prezzo: 490'000€
Libero: Si

Informazioni principali

Tipologia: Ufficio
Città: Caserta
Superficie: 180 m²
N° locali: 4
N° bagni: 2
Piano: Soppalco

Efficenza energetica

Classe energetica:
Condizioni stabile: Molto buono
Riscaldamento: Autonomo

Dati inserzione

ID Offrocasa.com: 10809071
Data inserimento: 16/06/2025
Rif. Agenzia: A8523
Rif. Agenzia A8523

Immobiliare Petrella srl

via mazzini 68 - Caserta
0823443600
Richiedi Info dal form:
Accetto l'Informativa Privacy


Immobiliare Petrella srl

via mazzini 68 - Caserta

Ufficio in Vendita a Caserta, 490'000€, 180 m²

Chiama
Contatta