Rustico in Vendita a Controguerra, 242'000€, 200 m²

Locali: 8
Bagni: 1
Camere: 2
Piano: Su due livelli
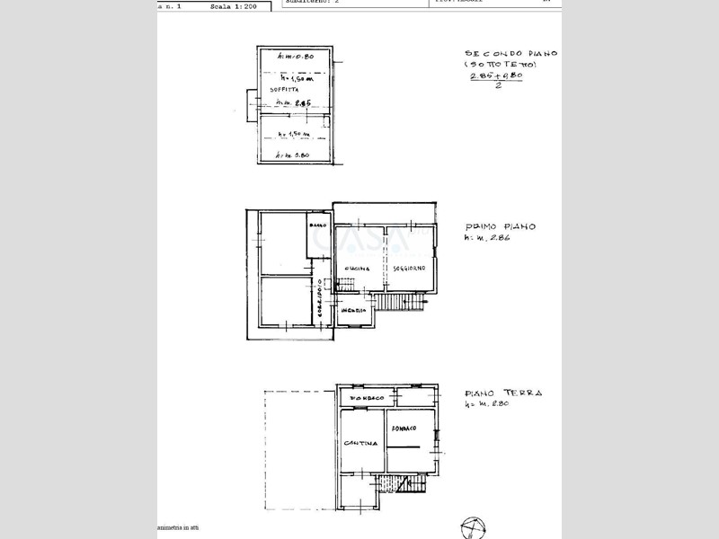
CONTROGUERRA proponiamo in vendita Casa Colonica con terreno, situata in una posizione tranquilla e riservata a circa 13 km da San Benedetto del Tronto. Il Casolare situato in campagna ma in posizione non isolata a soli 800 mt dal centro del paese è composto di due livelli oltre a soffitta. La proprietà offre spazi ampi e confortevoli e risulta così suddivisa: appartamento ristrutturato e da subito abitabile, posto al primo piano raggiungibile da scala esterna, composto da ingresso, ampio salone con zona soggiorno con camino, zona pranzo con cucina a vista, alcune gradini conducono al reparto notte dove troviamo due grandissime camere da letto (possibilità di realizzare un'ulteriore camera da letto) ed un bagno. Il piano primo è dotato di due grandi balconi di cui uno soggiornabile, con vista squarcio di mare, al servizio della zona giorno e uno perimetrale della zona notte. Lo stato di conservazione è ottimo in quanto è stato recentemente ristrutturato internamente. Il piano terra dell'altezza di 2,80 metri comprende una cantina, due fondaci ed un garage di 67 mq, la soffitta ha un'altezza max ed una minima di rispettivi metri 2,85 e 0,80 L'immobile dispone di un terreno annesso della superficie di 40.000 mq circa

Condizioni economiche

Contratto: Vendita
Prezzo: 242'000€
Libero: Si

Informazioni principali

Tipologia: Rustico
Città: Controguerra
Superficie: 200 m²
N° locali: 8
N° bagni: 1
N° Camere: 2
Piano: Su due livelli
Box: Triplo
Cucina: Si
Giardino: Privato
Esposizione: Sud-Ovest

Efficenza energetica

Classe energetica: G
Ipe: 175,00 kwh_m2
Condizioni stabile: Restaurato
Riscaldamento: Autonomo

Dati inserzione

ID Offrocasa.com: 10809003
Data inserimento: 16/06/2025
Rif. Agenzia: 1088
Rif. Agenzia 1088

Casa Più immobiliare

Via Val Tiberina n. 140 - San Benedetto del Tronto (Ascoli Piceno)
3388271146
Richiedi Info dal form:
Accetto l'Informativa Privacy


Casa Più immobiliare

Via Val Tiberina n. 140 - San Benedetto del Tronto (Ascoli Piceno)

Rustico in Vendita a Controguerra, 242'000€, 200 m²

Chiama
Contatta