Immobile commerciale in Affitto a Roma, 14'500€, 1200 m²

Locali: 3
Bagni: 3
Piano: Terra
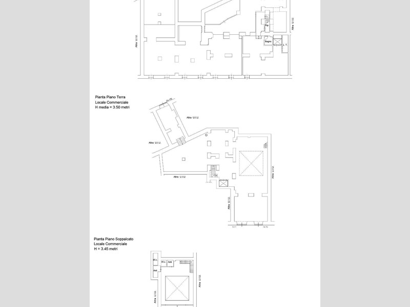
SALARIO. Adiacenze Via Po, in zona ben collegata e ricca di attività commerciali di ogni tipo, la BHHS Roma Immobiliare propone in locazione ampio locale commerciale posto su tre livell, tutti di categoria C1, con 3 accessi da due vie distinte, di complessivi mq 1200, così distribuiti: - mq 400 su piano stradale - mq 100 su 1° piano soppalcato - mq 700 su piano interrato Il locale è in fase di ristrutturazione ed è dotato di canna fumaria e di ascensore interno. Altezza soffitti mt. 3.45. Il canone di locazione richiesto è di Euro 14.500, 00 mensili. Cl. En. G. RIF61V25 Consulente Immobiliare Annalisa D. Angela Alessandroni Tel 06.8559689 *Le presenti informazioni e planimetrie sono meramente indicative e non costituiscono elementi contrattuali. LA NOSTRA STORIA: Siamo molto orgogliosi di essere gli unici rappresentanti del network immobiliare internazionale Berkshire Hathaway HomeServices in centro Italia, accogliendo il marchio Berkshire Hathaway HomeServices | ROMA Immobiliare. Berkshire Hathaway HomeServices (BHHS) è la rete globale di intermediazione immobiliare appartenente a BERKSHIRE HATHAWAY Inc. , una delle Holding più solide, rispettate e ammirate al mondo e di cui Warren Buffett è Presidente e CEO. BHHS ha sede ad Irvine in California e il suo network, in fase di rapida espansione, oggi conta più di 50.000 agenti attivi su circa 1.500 uffici tra USA, Canada, America Centrale, Europa e UAE. Si colloca inoltre al 6° posto nella classifica 2022 delle società più ammirate d'America (Fortune Magazine), preceduta solo da Apple, Amazon, Microsoft, Pfizer e Walt Disney. BERKSHIRE HATHAWAY HomeServices | ROMA Immobiliare è un marchio che, grazie alle sue Agenzie di Piazza Verbano 1, Corso del Rinascimento 37/39 e Via Terenzio 25/27, accoglie giornalmente Clienti interessati ad immobili nelle zone di Trieste - Parioli - Africano - Pinciano - Bologna - Flaminio- Salario - Centro storico e limitrofe. BERKSHIRE HATHAWAY HomeServices | ROMA Immobiliare è formata da personale altamente professionale, con esperienza più che ventennale, in grado di fornire le giuste indicazioni per valorizzare e commercializzare al meglio un immobile.

Condizioni economiche

Contratto: Affitto
Prezzo: 14'500€

Informazioni principali

Tipologia: Immobile commerciale
Città: Roma
Superficie: 1200 m²
N° locali: 3
N° bagni: 3
Piano: Terra

Efficenza energetica

Classe energetica: G
Ipe: 175 kwh_m3
Condizioni stabile: Restaurato

Dati inserzione

ID Offrocasa.com: 10807897
Data inserimento: 16/06/2025
Rif. Agenzia: 61V25
Rif. Agenzia 61V25

Luxury Real Estate Srl

Piazza Verbano, 1 - Roma
068559689
Richiedi Info dal form:
Accetto l'Informativa Privacy


Luxury Real Estate Srl

Piazza Verbano, 1 - Roma

Immobile commerciale in Affitto a Roma, 14'500€, 1200 m²

Chiama
Contatta