Rustico in Vendita a Linguaglossa, 18'000€, 74 m²

Locali: 2
Bagni: 1
Camere: 1
Piano: Terra
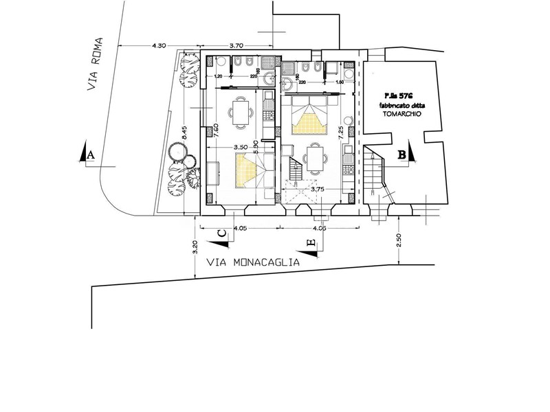
Si propone nel centro del Comune di Linguaglossa (CT) la Vendita di un rudere indipendente, precisamente in via Monacaglia n°1,3. L’immobile in oggetto è costituito da N°2 particelle immobiliari dove si possono realizzare n°2 mini appartamenti come da progetto approvato dalla sopraintendenza e dal Comune con il rilascio della Concessione Edilizia. Grazie alla sua posizione è ideale sia come residenza principale che come casa vacanze, questo rustico è una vera occasione per chi desidera vivere in un ambiente tranquillo e autentico. Questo immobile è ubicato in pieno centro storico di Linguaglossa, vicino a tutte le attrazioni turistiche, l’Etna con le sue piste da sci, vigneti DOC con Casali, Palmenti e tutte le strutture di primarie necessità compreso ristoranti, pizzerie, enoteche, etc. Non perdere l'opportunità di diventare il nuovo proprietario di questo rustico incantevole e contattaci per ulteriori informazioni e per organizzare una visita.

Condizioni economiche

Contratto: Vendita
Prezzo: 18'000€
Libero: Si

Informazioni principali

Tipologia: Rustico
Città: Linguaglossa
Superficie: 74 m²
N° locali: 2
N° bagni: 1
N° Camere: 1
Piano: Terra

Efficenza energetica

Classe energetica: G
Ipe: 175,00 kwh_m2
Condizioni stabile: Da restaurare

Dati inserzione

ID Offrocasa.com: 10804842
Data inserimento: 16/06/2025
Rif. Agenzia: CBI178-2734-175
Rif. Agenzia CBI178-2734-175

Coldwell Banker Arteka Group

Viale Cristoforo Colombo 41 - Acireale (Catania)
(+39) 095 7648129
Richiedi Info dal form:
Accetto l'Informativa Privacy


Coldwell Banker Arteka Group

Viale Cristoforo Colombo 41 - Acireale (Catania)

Rustico in Vendita a Linguaglossa, 18'000€, 74 m²

Chiama
Contatta