Immobile commerciale in Affitto a Bibbiena, 1'300€, 120 m²

Locali: 1
Piano: Terra
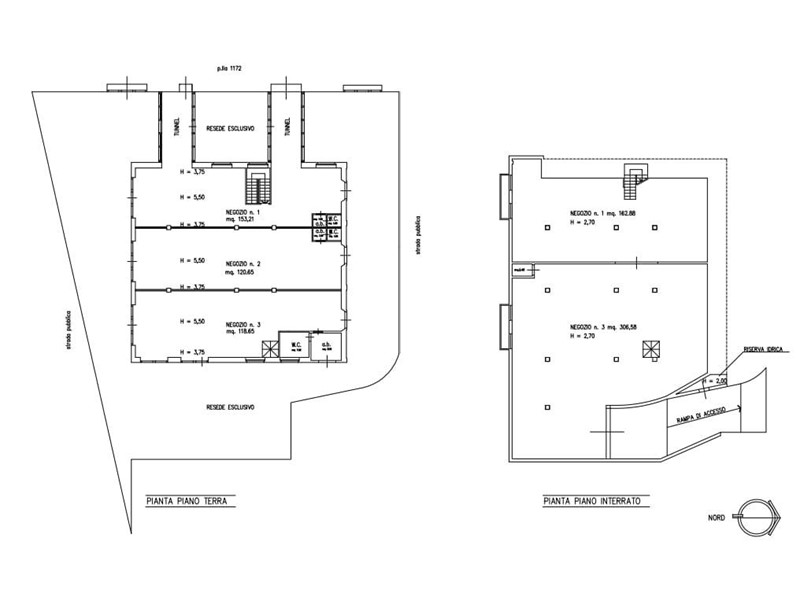
SOCI - ZONA CENTRALISSIMA - AFFITTASI FONDO COMMERCIALE DI 120 MQ CIRCA IN PORZIONE DI IMMOBILE CON RESEDE ANTISTANTE CORRISPONDENTE ALLA PLANIMETRIA PUBBLICATA INDICATA CON IL NUMERO 2. E' POSSIBILE AFFITTARE L'INTERO EDIFICIO SVILUPPATO SU DUE LIVELLI (PIANO STRADA E SEMINTERRATO) O VARIE PEZZATURE COME IPOTIZZATO E INDICATO NELLA PIANTA ALLEGATA - TRATTATIVA RISERVATA IN AGENZIA.

Condizioni economiche

Contratto: Affitto
Prezzo: 1'300€
Libero: Si

Informazioni principali

Tipologia: Immobile commerciale
Città: Bibbiena
Superficie: 120 m²
N° locali: 1
Piano: Terra

Efficenza energetica

Classe energetica:
Condizioni stabile: Buono

Dati inserzione

ID Offrocasa.com: 10803872
Data inserimento: 16/06/2025
Rif. Agenzia: 229AF
Rif. Agenzia 229AF

Alfani Immobiliare

VIA UMBRO CASENTINESE 69 - Bibbiena (Arezzo)
348.7412661
Richiedi Info dal form:
Accetto l'Informativa Privacy


Alfani Immobiliare

VIA UMBRO CASENTINESE 69 - Bibbiena (Arezzo)

Immobile commerciale in Affitto a Bibbiena, 1'300€, 120 m²

Chiama
Contatta