Bilocale in Vendita a Pecetto Torinese, 172'000€, 70 m²
        
    
        
    
        
    
    
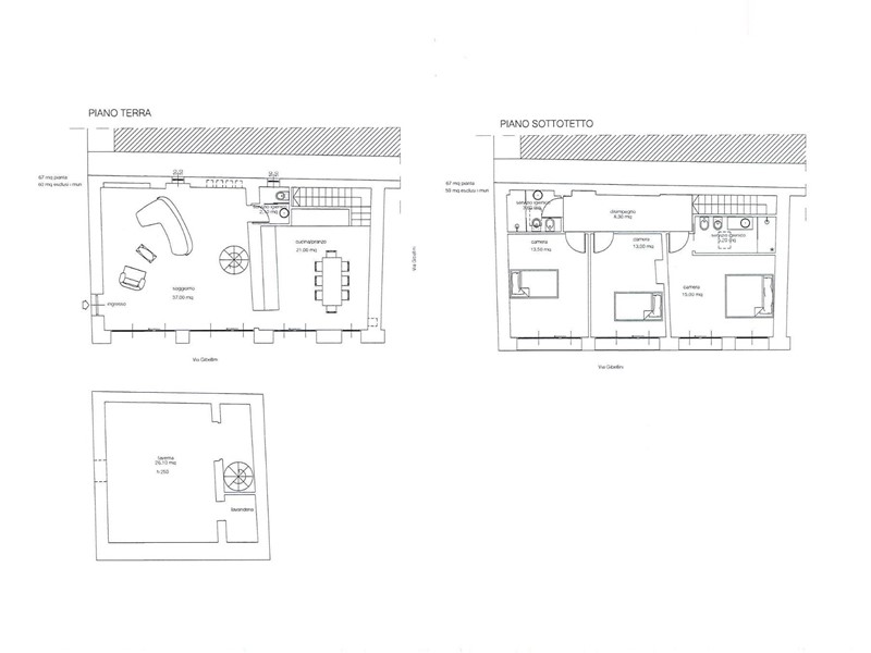
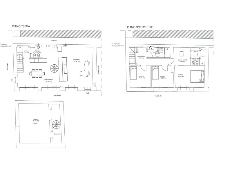
        In Vendita: Nuovi Appartamenti in Fase di Edificazione! Proponiamo soluzioni abitative in un cantiere in fase di edificazione, situato in una zona strategica nel concentrico di Pecetto Torinese. Due diverse tipologie di appartamenti, ideali per famiglie o come investimento. Soluzione 1: Appartamento su Due Livelli - Superficie: 70 mq + posto auto esterno - Composizione: - Piano Terra: Zona giorno con angolo cottura - Piano Primo: Camera e bagno Soluzione 2: Appartamento su Due Livelli con Piano Interrato - Superficie: 100 mq + posto auto esterno - Composizione: - Piano Terra: Zona giorno con angolo cottura e servizio - Piano Primo: Due camere e altro servizio - Piano Interrato: Taverna e lavanderia Caratteristiche Aggiuntive: - Possibilità di acquisto in unica soluzione - Opzioni di personalizzazione degli ambienti e delle finiture interne Perché Scegliere Questi Appartamenti? - Posizione Ideale: Vicinanza a servizi, scuole e trasporti pubblici. - Qualità Costruttiva: Progettati con materiali di alta qualità e attenzione ai dettagli, classi energetiche A+ - Flessibilità: Personalizza il tuo spazio secondo le tue esigenze! Non perdere l'opportunità, contattaci per maggiori Informazioni o per prenotare una visita al cantiere.
	
    
    
    
        
        
            Condizioni economiche
            
                Contratto: Vendita
            
            
                Prezzo: 172'000€
            
            
                
                    Libero: Si
                
            
         
        
            Informazioni principali
            
                Tipologia: Bilocale
            
            
                Città: Pecetto Torinese
            
            
                
                    Superficie: 70 m²
                
            
                
                    N° locali: 2
                
            
                
                    N° bagni: 2
                
            
                
                    N° Camere: 1
                
            
                
                    Piano: Su due livelli
                
            
         
        
            Efficenza energetica
            
                Classe energetica: NA - Non Applicabile
            
            
                
                    Anno di costruzione: 2025
                
            
                
                    Riscaldamento: Autonomo
                
            
		 
        
            
                Dati inserzione
                
                    ID Offrocasa.com: 10800278
                
                
                
                    Data inserimento: 16/06/2025
                
                
                    
                        Rif. Agenzia: 1-3
                    
                
             
        
	 
    
    
        
Bilocale in Vendita a Pecetto Torinese, 172'000€, 70 m²