Appartamento in Vendita a Pordenone, 380'000€, 195 m²

Locali: 5
Bagni: 2
Camere: 2
Piano: 1
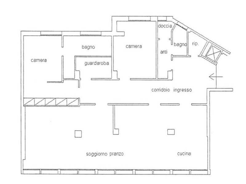
PRESTIGIOSO APPARTAMENTO RISTRUTTURATO IN CENTRO A PORDENONE In zona Viale Marconi, in elegante condominio con vista aperta sul parchetto vicino a Cinemazero, nel cuore pulsante della città. Proponiamo in vendita un appartamento completamente ristrutturato con finiture di pregio, ideale per chi cerca uno spazio esclusivo, moderno e pronto da vivere. Superficie commerciale: 195 mq Ristrutturato integralmente: impianti, pavimentazioni e bagni nuovi Arredamento su misura, di alta gamma compreso nel prezzo Condominio riqualificato con Superbonus 110%: nuova caldaia centralizzata, ascensore nuovo e importanti migliorie energetiche Perfetto per chi desidera vivere il centro con comodità, eleganza e senza compromessi di stile. Parcheggio condominiale interno disponibile a rotazione ed eventuale possibilità di acquisto garage nelle vicinanze. Chiama lo 0434 28125 per maggiori informazioni e visita il nostro sito sempre aggiornato www.gruppolaprecisa.com

Condizioni economiche

Contratto: Vendita
Prezzo: 380'000€
Spese condominiali: 250€
Libero: Si

Informazioni principali

Tipologia: Appartamento
Città: Pordenone
Superficie: 195 m²
N° locali: 5
N° bagni: 2
N° Camere: 2
Piano: 1

Efficenza energetica

Classe energetica: D
Ipe: 132,73 kwh_m2
Anno di costruzione: 1959
Condizioni stabile: Molto buono
Riscaldamento: Centralizzato con contabilizzatore di calore

Caratteristiche

Ascensore: Si

Dati inserzione

ID Offrocasa.com: 10800086
Data inserimento: 16/06/2025
Rif. Agenzia: LPP01-4429
Rif. Agenzia LPP01-4429

La Precisa SAS di Massimo Crotti & C.

Via della Colonna 26 - Pordenone
0434.28125
Richiedi Info dal form:
Accetto l'Informativa Privacy


Condividi

La Precisa SAS di Massimo Crotti & C.

Via della Colonna 26 - Pordenone

Appartamento in Vendita a Pordenone, 380'000€, 195 m²

Chiama
Contatta