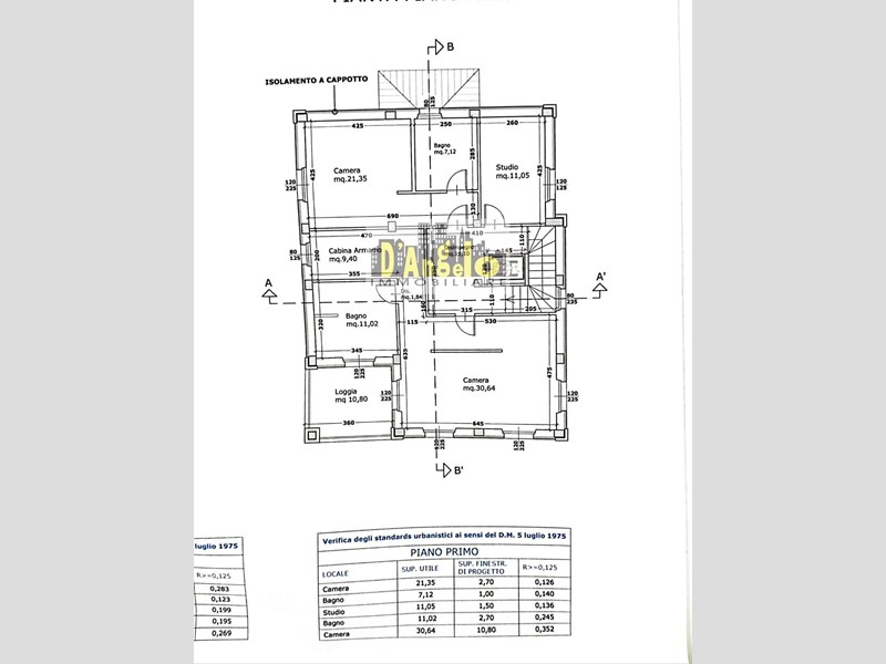
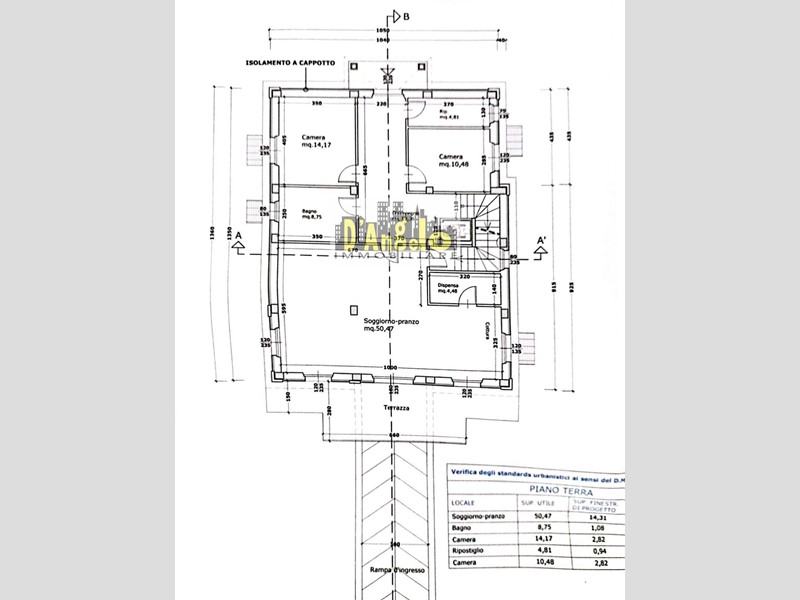
Casa Indipendente in Vendita a Cossignano, 150 m²

Locali: 10
Piano: Su due livelli
Proponiamo in vendita a Cossignano (AP), in zona residenziale e tranquilla, casa singola in fase di costruzione. L'immobile si sviluppa su due livelli, per una superficie totale di 150 mq, ed è composto da dieci locali spaziosi e ben distribuiti. Attualmente in stato grezzo, la casa offre la possibilità di essere personalizzata e completata secondo i propri gusti e le proprie esigenze. E' inoltre dotata di un giardino privato, ideale per trascorrere momenti di relax all'aria aperta e godere della tranquillità della zona. Grazie alla sua posizione su due piani, la casa garantisce un'ottima luminosità e una perfetta divisione degli spazi interni. Ideale per una famiglia numerosa o per chi desidera ampi spazi. Opportunità perfetta per vivere in una zona residenziale tranquilla e comoda ai servizi.

Condizioni economiche

Contratto: Vendita
Prezzo: Prezzo su richiesta
Libero: Si

Informazioni principali

Tipologia: Casa Indipendente
Città: Cossignano
Superficie: 150 m²
N° locali: 10
Piano: Su due livelli
Giardino: Privato

Efficenza energetica

Classe energetica:

Dati inserzione

ID Offrocasa.com: 10799538
Data inserimento: 16/06/2025
Rif. Agenzia: 24
Rif. Agenzia 24

D'angelo Immobiliare

Corso Serpente Aureo 24 - Offida (Ascoli Piceno)
3342652776
Richiedi Info dal form:
Accetto l'Informativa Privacy


D'angelo Immobiliare

Corso Serpente Aureo 24 - Offida (Ascoli Piceno)

Casa Indipendente in Vendita a Cossignano, 150 m²

Chiama
Contatta