Rustico in Vendita a Montalcino, 279 m²

Locali: 10+
Bagni: 3
Camere: 4
Piano: Terra
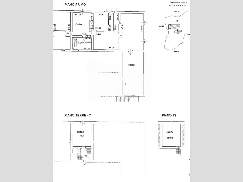
Azienda Agricola Biologica in Vendita a Montalcino – Casale Panoramico con Lago e Terreni In vendita un'esclusiva azienda agricola biologica a Montalcino, immersa nella meravigliosa campagna toscana, in una posizione panoramica unica. Questa proprietà rappresenta un'opportunità irripetibile per chi desidera vivere nella natura o investire in un'attività agricola di successo. Il casale in vendita è un caratteristico edificio toscano in pietra disposto su due livelli: 🔹 Piano primo: ampio appartamento con quattro camere da letto, due bagni, cucina abitabile e soggiorno con accesso a una spaziosa terrazza panoramica. 🔹 Piano terra: locali ad uso rimessa con possibilità di riconversione per nuove esigenze abitative o aziendali. 🔹 Strutture annesse: capannone chiuso di 480 mq e fienile, ideali per attività agricole o agriturismo. 🔹 Lago privato, perfetto per l'irrigazione o per creare un'oasi di relax all'interno della tenuta. 🌿 Un Casale con Potenziale in una Location Esclusiva Questa tenuta agricola biologica gode di un contesto naturale mozzafiato, circondata da vigneti e colline ondulate, a pochi minuti dal celebre borgo di Montalcino e dalle rinomate cantine della Val d’Orcia. 🔹 Servizi disponibili: energia elettrica, pozzo per acqua piovana e pozzo di vena. 🔹 Posizione strategica: facilmente accessibile, vicina ai principali collegamenti e servizi. Se sei alla ricerca di un casale in vendita in Toscana, questa proprietà è la scelta perfetta per una residenza privata, un agriturismo di charme o un'azienda agricola biologica produttiva. 📩 Contattaci per maggiori informazioni e per organizzare una visita esclusiva!

Condizioni economiche

Contratto: Vendita
Prezzo: Prezzo su richiesta
Arredato: Parzialmente arredato
Libero: Si

Informazioni principali

Tipologia: Rustico
Città: Montalcino
Superficie: 279 m²
N° locali: 10+
N° bagni: 3
N° Camere: 4
Piano: Terra
Giardino: Privato

Efficenza energetica

Classe energetica: G
Condizioni stabile: Da restaurare

Dati inserzione

ID Offrocasa.com: 10797726
Data inserimento: 16/06/2025
Rif. Agenzia: P1073
Rif. Agenzia P1073

SOLE DI TOSCANA

Via A.Landucci 11 Loc.Montefollonico - Torrita di Siena (Siena)
+390577669496
Richiedi Info dal form:
Accetto l'Informativa Privacy


SOLE DI TOSCANA

Via A.Landucci 11 Loc.Montefollonico - Torrita di Siena (Siena)

Rustico in Vendita a Montalcino, 279 m²

Chiama
Contatta