Ufficio in Affitto a Roma, 57'000€, 1722 m²

Locali: 10+
Bagni: 10
Piano: Su più livelli
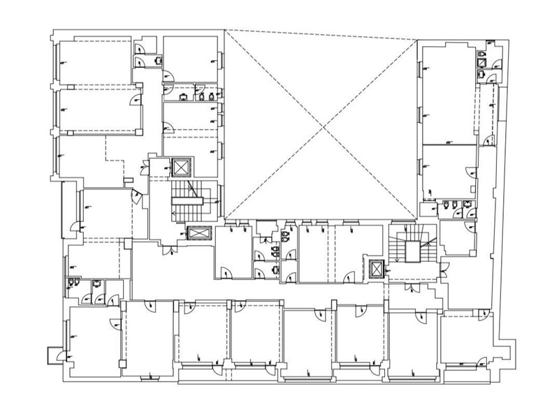
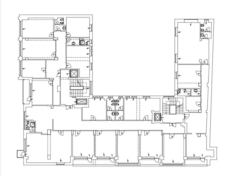
Prestigioso Ufficio in Affitto – Zona Flaminio, Roma 🏢'œ¨ L’Agenzia Area-Re è lieta di proporre in locazione un esclusivo ufficio di alta rappresentanza, situato nel cuore del quartiere Flaminio, in un elegante edificio di 8 piani. 📍 Posizione strategica e contesto esclusivo L’ufficio si trova in una zona curata e ben servita, caratterizzata da un'atmosfera professionale ed elegante, ideale per aziende di rilievo, grandi studi professionali o istituzioni che necessitano di ampie metrature e massima funzionalità. Caratteristiche principali:'œ” Superficie totale di 1.722 mq, di cui 1.600 mq calpestabili, perfettamente distribuiti. 'œ” 45 locali spaziosi e ben illuminati, adatti a uffici dirigenziali, sale riunioni e postazioni operative. 'œ” 12 servizi igienici, per garantire comfort e funzionalità a tutti gli occupanti. 'œ” Spazi ben organizzati, con stanze separate da pareti, per un'ottima gestione della privacy e del lavoro in team. 'œ” Attualmente in fase di ristrutturazione, con ambienti personalizzabili secondo le esigenze del nuovo inquilino. 🔒 Sicurezza e comfort ai massimi livelli Sistema di allarme, per garantire protezione a persone e beni. Servizio di portineria, che assicura accesso controllato e accoglienza professionale. Riscaldamento centralizzato a metano, per un ambiente sempre confortevole e una gestione efficiente dei consumi. Una soluzione ideale per grandi realtà professionaliGrazie alla sua ampia metratura e alla disposizione intelligente degli spazi, questo ufficio rappresenta un'opportunità imperdibile per aziende, società internazionali, studi associati e istituzioni in cerca di un ambiente di prestigio e di alto livello nel cuore di Roma. 📞 Contattaci subito per maggiori informazioni e per prenotare una visita al numero 066780498 o scrivici alla nostra mail : centrostorico@area-re.it

Condizioni economiche

Contratto: Affitto
Prezzo: 57'000€
Arredato: Non arredato
Libero: Si

Informazioni principali

Tipologia: Ufficio
Città: Roma
Superficie: 1722 m²
N° locali: 10+
N° bagni: 10
Piano: Su più livelli

Efficenza energetica

Classe energetica: C
Condizioni stabile: Molto buono
Riscaldamento: Centralizzato

Dati inserzione

ID Offrocasa.com: 10797503
Data inserimento: 16/06/2025
Rif. Agenzia: AR8757112
Rif. Agenzia AR8757112

Area Real Estate srl

Via della Tre Cannelle, 3 - Roma
066780498
Richiedi Info dal form:
Accetto l'Informativa Privacy


Area Real Estate srl

Via della Tre Cannelle, 3 - Roma

Ufficio in Affitto a Roma, 57'000€, 1722 m²

Chiama
Contatta