Appartamento in Vendita a Sant'Arpino, 260'000€, 160 m²
        
    
        
    
        
    
    
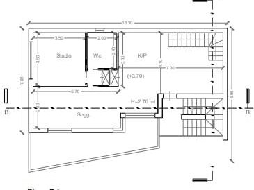
        Sant'Arpino propone in vendita esclusiva, in zona centralissima nelle immediate vicinanze della Piazza principale, splendido appartamento semi-indipendente di nuovissima costruzione, tipologia duplex dunque strutturato su due livelli, complessivamente di c.ca 160 mq interni.
La soluzione, ubicata in un contesto di sole due unità abitative, è così composta da progetto:
-Piano rialzato ampia zona giorno salone e cucina, una camera studio e un bagno;
-Piano primo ampia zona notte con tre camere da letto due delle quali con comoda cabina armadio e un secondo bagno.
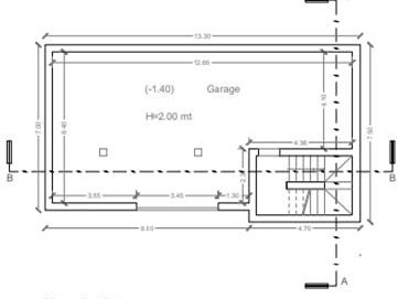
Si completa infine di posto auto coperto assegnato e di c.ca 30 mq di cantina.
In questa fase si può ancora intervenire nella distribuzione degli spazi interni e nella personalizzazione.
	
    
    
    
        
        
            Condizioni economiche
            
                Contratto: Vendita
            
            
                Prezzo: 260'000€
            
            
                
                    Libero: Si
                
            
         
        
            Informazioni principali
            
                Tipologia: Appartamento
            
            
                Città: Sant'Arpino
            
            
                
                    Superficie: 160 m²
                
            
                
                    N° locali: 5
                
            
                
                    N° bagni: 2
                
            
                
                    N° Camere: 4
                
            
                
                    Cucina: Si
                
            
         
        
            Efficenza energetica
            
                Classe energetica: A1
            
            
                
                    Anno di costruzione: 2024
                
            
                
                    Riscaldamento: Autonomo
                
            
		 
        
            
                Dati inserzione
                
                    ID Offrocasa.com: 10796298
                
                
                
                    Data inserimento: 16/06/2025
                
                
                    
                        Rif. Agenzia: 100
                    
                
             
        
	 
    
    
        
Appartamento in Vendita a Sant'Arpino, 260'000€, 160 m²