Villetta a schiera in Vendita a San Mango Piemonte, 480'000€, 250 m²

Locali: 6
Bagni: 2
Camere: 3
Piano: Terra
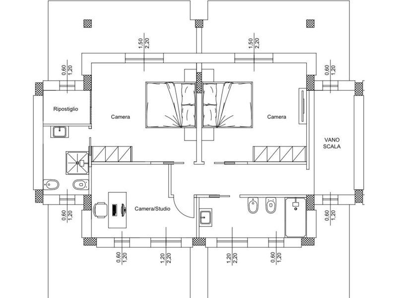
ULTIME DISPONIBILITA'. Proponiamo la vendita di una villa di ultima generazione semi-indipendente nella tranquilla zona di San Mango Piemonte, precisamente Località Canneto. La soluzione si compone di tre livelli collegati da una scala interna, giardino di esclusiva proprietà, due terrazzini e box auto e taverna . Il piano terra è composto da un ampio box auto per depositare comodamente la sua auto, il piano primo è composto da una lavanderia, un ripostiglio e un'ampia zona giorno con accesso al porticato di proprietà e il piano secondo è composto da due ampie camere da letto, una camera studio, due bagni, un disimpegno un ripostiglio e terrazzini a livello. Un'ottima soluzione per famiglie numerose che ricercano abitazioni moderne immerse nel verde e nella tranquillità. L'IMMOBILE SARA' DOTATO DI IMPIANTO FOTOVOLTAICO PER LA PRODUZIONE DI 6 KV, NONCHE' DI WALLBOX PER LA RICARICA DELL'AUTO E RISCALDAMENTO A PAVIMENTO. CLASSE ENERGETICA A2.

Condizioni economiche

Contratto: Vendita
Prezzo: 480'000€
Arredato: Non arredato
Libero: Si

Informazioni principali

Tipologia: Villetta a schiera
Città: San Mango Piemonte
Superficie: 250 m²
N° locali: 6
N° bagni: 2
N° Camere: 3
Piano: Terra
Box: Doppio

Efficenza energetica

Classe energetica:
Anno di costruzione: 2025
Riscaldamento: Autonomo

Dati inserzione

ID Offrocasa.com: 10796203
Data inserimento: 16/06/2025
Rif. Agenzia: 300
Rif. Agenzia 300

Salerno Pastena

PIazza Caduti di Brescia, 14 - Salerno
00000
Richiedi Info dal form:
Accetto l'Informativa Privacy


Salerno Pastena

PIazza Caduti di Brescia, 14 - Salerno

Villetta a schiera in Vendita a San Mango Piemonte, 480'000€, 250 m²

Chiama
Contatta