Bilocale in Vendita a Roma, 119'000€, 70 m²

Locali: 2
Bagni: 1
Camere: 1
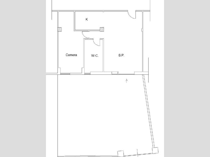
VALLE FIORITA, VIA ROCCA FIORITA/VIA ACICATENA. Appartamento con doppia entrata (condominiale e indipendente) 70 MQ. Buono stato. Soggiorno a vista con accesso diretto ad un cucinotto, piccolo corridoio che da accesso ad un grande bagno finestrato con doccia e ad una camera da letto matrimoniale con annesso piccolo ambiente con 2 armadi a muro. Completa la proprietà un giardino di circa 60 mq (metà verde con una pianta di ulivo, una di mandarino e un corbezzolo e metà mattonato). Possibilità di parcheggiare l'auto all'interno del giardino. Termoautonomo. USO IVESTIMENTO € 600,00 mensili, rendita del 6,5%

Condizioni economiche

Contratto: Vendita
Prezzo: 119'000€
Spese condominiali: 65€
Libero: Si

Informazioni principali

Tipologia: Bilocale
Città: Roma
Superficie: 70 m²
N° locali: 2
N° bagni: 1
N° Camere: 1

Efficenza energetica

Classe energetica: G
Riscaldamento: Autonomo

Dati inserzione

ID Offrocasa.com: 10794737
Data inserimento: 16/06/2025
Rif. Agenzia: via Rocca Fiorita
Rif. Agenzia via Rocca Fiorita

Fondocasa

via monopoli 27 - Roma
06.2005937
Richiedi Info dal form:
Accetto l'Informativa Privacy


Condividi

Fondocasa

via monopoli 27 - Roma

Bilocale in Vendita a Roma, 119'000€, 70 m²

Chiama
Contatta