Immobile commerciale in Affitto a Milano, 5'000€, 195 m²

Locali: 4
Bagni: 1
Piano: Terra
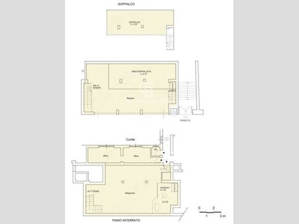
Locale Commerciale in Affitto – Via Medici, Milano - Centro Storico, Zona Carrobbio All’interno di un contesto signorile con servizio di portineria e grazioso giardino condominiale, proponiamo in locazione locale commerciale di 195 mq sito al piano terra. Composizione interna: Al piano terra, negozio di mq 92 Soppalco mq 35 Al piano interrato è posizionato il locale deposito di mq 60 e un ufficio di mq 26 Bagno al piano interrato La soluzione presenta tre vetrine su strada e gode di una posizione strategica. Dotazioni e finiture: aria condizionata, riscaldamento centralizzato (incluso nelle spese condominiali), immobile cablato L'immobile è libero dal 30/06/2025 L'immobile non può essere utilizzato per attività di ristorazione o palestre. Canone di locazione: €5.000,00 mensili + € 500,00 di spese condominiali. Disponibile esclusivamente per conduttori referenziati con comprovata solidità economica.

Condizioni economiche

Contratto: Affitto
Prezzo: 5'000€
Arredato: Non arredato
Spese condominiali: 500€
Libero: Si

Informazioni principali

Tipologia: Immobile commerciale
Città: Milano
Superficie: 195 m²
N° locali: 4
N° bagni: 1
Piano: Terra
Giardino: Comune

Efficenza energetica

Classe energetica: G
Condizioni stabile: Molto buono
Riscaldamento: Centralizzato

Dati inserzione

ID Offrocasa.com: 10794728
Data inserimento: 16/06/2025
Rif. Agenzia: CBI135-2826-2238
Rif. Agenzia CBI135-2826-2238

Coldwell Banker Immobiliare Morabito

Corso Sempione, 44 - Milano
+(39) 3492795950
Richiedi Info dal form:
Accetto l'Informativa Privacy


Coldwell Banker Immobiliare Morabito

Corso Sempione, 44 - Milano

Immobile commerciale in Affitto a Milano, 5'000€, 195 m²

Chiama
Contatta