Casa Indipendente in Vendita a Livorno, 630'000€, 210 m²

Locali: 4
Bagni: 3
Camere: 2
Piano: Su più livelli
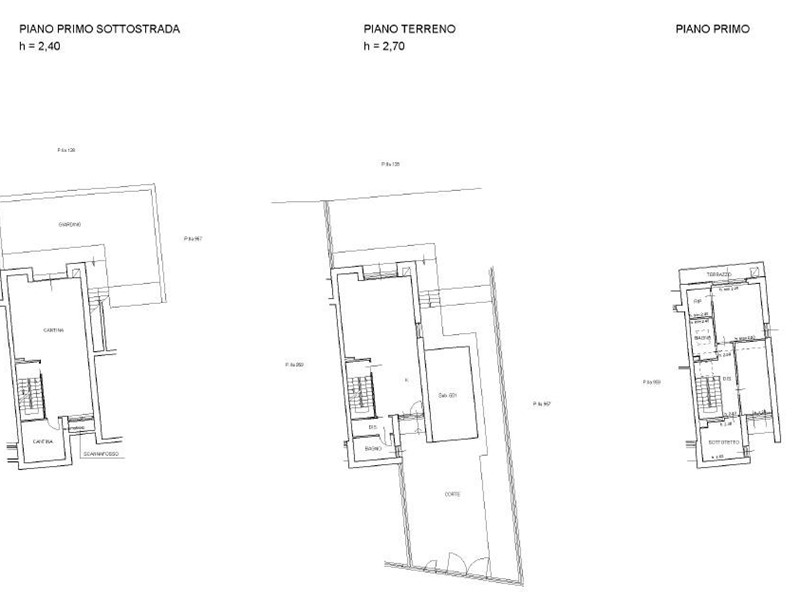
Montenero basso Villetta a schiera, 3 livelli, giardino e garage. Meravigliosa vista Mare. Rif. 2024Li050 Villetta a schiera, libera su 3 lati, due abitabili e una taverna per un totale di circa 210 mq commerciali divisi in 6 locali. Giardino d'ingresso di circa 50 mq con posti auto. Ingresso in sala con porta finestra che conduce al giardino sul retro di circa 140 mq e cucina semi abitabile a vista. Al primo piano la zona notte composta da 2 camere con balcone, una matrimoniale con meravilgiosa vista mare, una media ed uno studio e servizio con doccia. Al piano seminterrato, ampia taverna con servizio. Completa la proprietà un garage collegato direttamente con l'appartamento, di circa 20 mq. Lavori esterni in fase di completamento, lavori interni da personalizzare. A pochi minuti dall'uscita della variante, in strada silenziosa e con estrema facilità di parcheggio. Per ulteriori informazioni, contattare l'agenzia.

Condizioni economiche

Contratto: Vendita
Prezzo: 630'000€
Arredato: Non arredato
Libero: Si

Informazioni principali

Tipologia: Casa Indipendente
Città: Livorno
Superficie: 210 m²
N° locali: 4
N° bagni: 3
N° Camere: 2
Piano: Su più livelli
Box: Singolo
Giardino: Privato

Efficenza energetica

Classe energetica: A1
Ipe: 100,00 kwh_m2
Anno di costruzione: 2022
Riscaldamento: Autonomo

Dati inserzione

ID Offrocasa.com: 10793991
Data inserimento: 16/06/2025
Rif. Agenzia: 2024Li050
Rif. Agenzia 2024Li050

Megaron Immobiliare Livorno

Via Montebello 2 - Livorno
0586.802413
Richiedi Info dal form:
Accetto l'Informativa Privacy


Megaron Immobiliare Livorno

Via Montebello 2 - Livorno

Casa Indipendente in Vendita a Livorno, 630'000€, 210 m²

Chiama
Contatta