Appartamento in Vendita a Roccapiemonte, 99'000€, 270 m²

Locali: 10
Bagni: 2
Camere: 8
Piano: Su più livelli
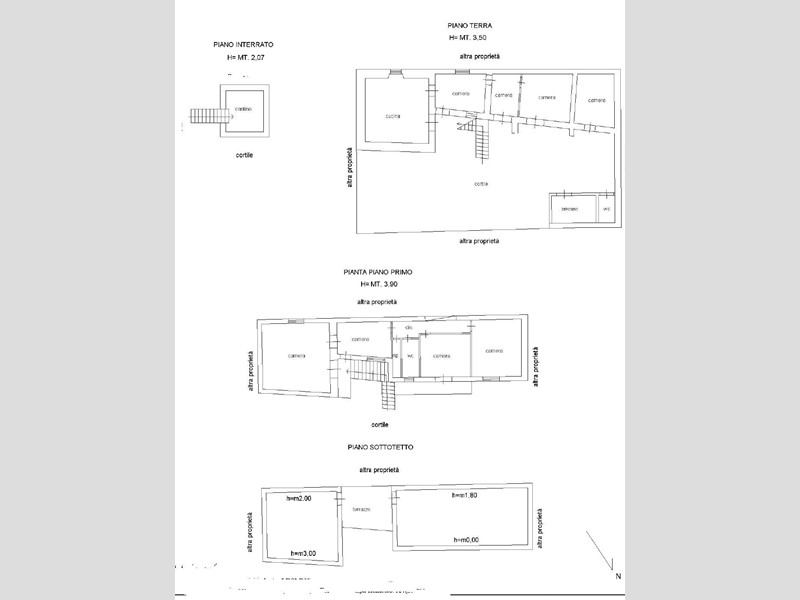
A Roccapiemonte, in una zona poco distante dal centro, proponiamo terracielo di ampia metratura. La soluzione, posta all'interno di una corte, si sviluppa su 4 livelli. Il piano terra è suddiviso in cucina e 4 camere, il piano superiore, collegato al piano terra da scala esterna, si compone di ulteriori 4 camere con bagno e ripostiglio. Il piano sottotetto si suddivide in due ambienti e terrazzo. Completano il tutto cantina al piano interrato, ampio cortile di 110 mq circa e piccolo locale deposito con bagno. Lo stabile, da ristrutturare, grazie alla cospicua metratura e alla sua disposizione, si presta alla realizzazione sia di un'unica soluzione che di due appartamenti indipendenti.

Condizioni economiche

Contratto: Vendita
Prezzo: 99'000€
Libero: Si

Informazioni principali

Tipologia: Appartamento
Città: Roccapiemonte
Superficie: 270 m²
N° locali: 10
N° bagni: 2
N° Camere: 8
Piano: Su più livelli
Cucina: Si
Giardino: Privato

Efficenza energetica

Classe energetica:
Condizioni stabile: Da restaurare

Dati inserzione

ID Offrocasa.com: 10791543
Data inserimento: 16/06/2025
Rif. Agenzia: 62
Rif. Agenzia 62

Fondocasa

Via degli olivetani, 47 - Nocera Inferiore (Salerno)
Richiedi Info dal form:
Accetto l'Informativa Privacy


Condividi

Fondocasa

Via degli olivetani, 47 - Nocera Inferiore (Salerno)

Appartamento in Vendita a Roccapiemonte, 99'000€, 270 m²

Contatta