Casa Indipendente in Vendita a San Demetrio ne' Vestini, 115'000€, 100 m²

Locali: 4
Bagni: 3
Camere: 3
Piano: Su più livelli
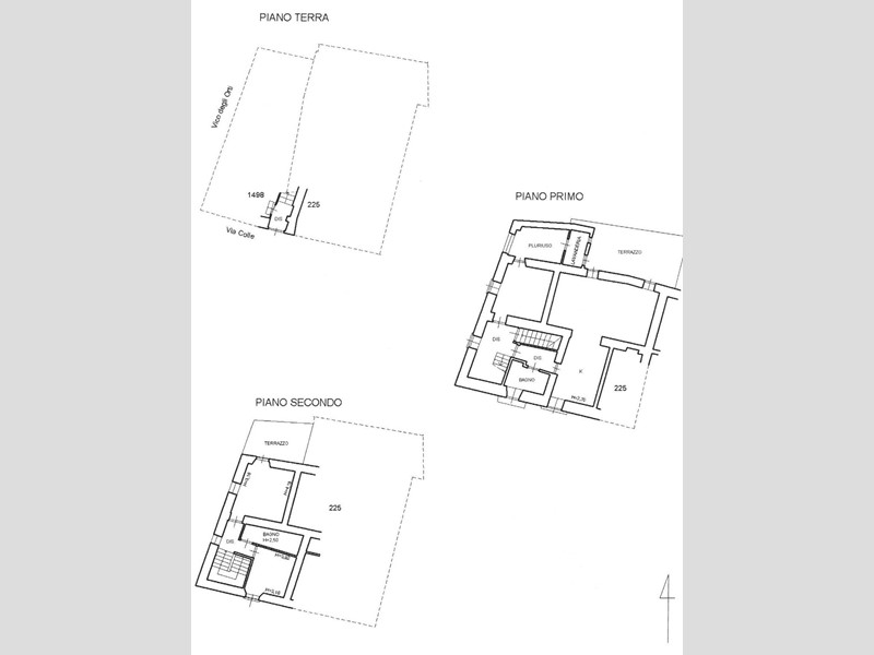
Rif. GRE693 - San Demetrio nè Vestini: In zona tranquilla e ben servita, a circa 15 km da L'Aquila, proponiamo in vendita casa cielo terra di 100 mq ca. totalmente ristrutturata nel 2018. Al primo piano veniamo accolti da un ampio disimpegno che ci conduce ad una zona giorno open space con cucina a vista servita da terrazzo, camera matrimoniale, bagno e lavanderia con uscita sul terrazzo. Al secondo piano troviamo due camere matrimoniali una servita da terrazzo di 5 mq ca, e bagno, il tutto rifinito con tetto in legno a vista. Completa la soluzione una cantina di 30 mq ca, un box auto di 16 mq con bagno, e un locale deposito . Ideale come prima abitazione o casa vacanze per la vicinanza a tutto ciò che il Parco Nazionale ed i borghi circostanti hanno da offrire. Devi vendere per acquistare? Chiedici una valutazione GRATUITA e senza impegno.

Condizioni economiche

Contratto: Vendita
Prezzo: 115'000€
Arredato: Non arredato
Libero: Si

Informazioni principali

Tipologia: Casa Indipendente
Città: San Demetrio ne' Vestini
Superficie: 100 m²
N° locali: 4
N° bagni: 3
N° Camere: 3
Piano: Su più livelli
Box: Singolo
Cucina: Si

Efficenza energetica

Classe energetica: E
Condizioni stabile: Restaurato
Riscaldamento: Autonomo

Dati inserzione

ID Offrocasa.com: 10790275
Data inserimento: 16/06/2025
Rif. Agenzia: GRE693
Rif. Agenzia GRE693

Grimaldi Immobiliare

Via Amiternum 2 - L'Aquila
3283164514
Richiedi Info dal form:
Accetto l'Informativa Privacy


Grimaldi Immobiliare

Via Amiternum 2 - L'Aquila

Casa Indipendente in Vendita a San Demetrio ne' Vestini, 115'000€, 100 m²

Chiama
Contatta