Casa Indipendente in Vendita a Rocchetta a Volturno, 125'000€, 300 m²
        
    
        
    
        
    
    
        Questa casa indipendente in vendita a Rocchetta a Volturno è un'opportunità perfetta per chi desidera una residenza immersa nella natura e allo stesso tempo vicina ai servizi essenziali.
Situata in una zona tranquilla e residenziale, la proprietà si trova in un fase di costruzione, il che permette di personalizzarla secondo i propri gusti e necessità.
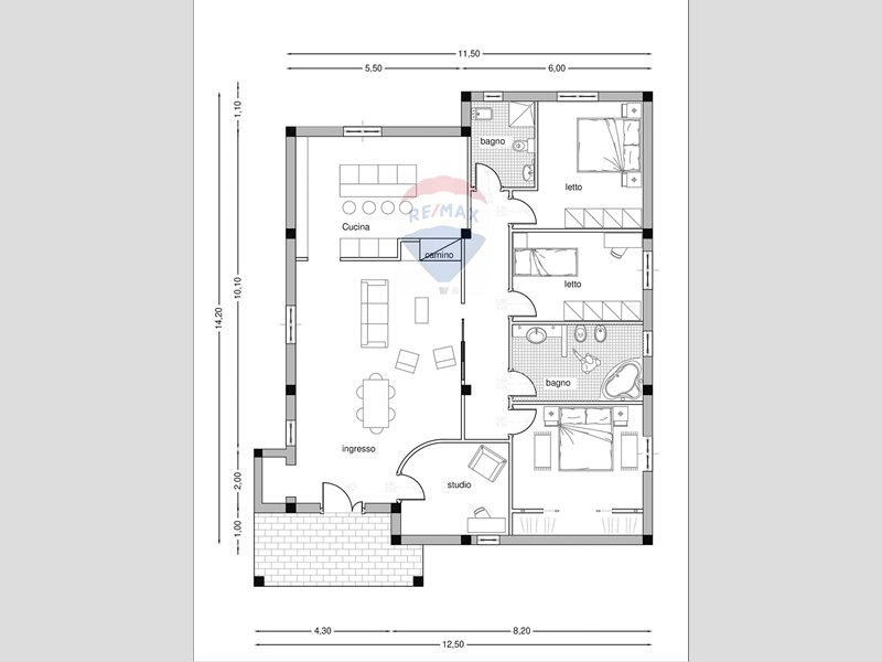
La casa si sviluppa su due livelli, per un totale di 300 metri quadrati, dei quali 266 calpestabili.
La sua composizione interna prevede attualmente due unici ed ampi locali, che dovranno essere divisi ed adibiti a camere da letto, uffici, spazi living, bagni, a seconda delle proprie esigenze.
Il tutto è stato progettato per garantire un utilizzo ottimale degli spazi, con ambienti luminosi e confortevoli.
Il combustibile utilizzato per il riscaldamento sarà scelto in base alle proprie esigenze, optando per una soluzione economica e sostenibile.
Lo stato di conservazione è attualmente grezzo al suo interno, il che permette di personalizzare gli spazi secondo i propri gusti e necessità, lasciando così libertà di scelta anche nell'arredamento. 
Uno dei punti di forza della proprietà è sicuramente la presenza di più balconi ed un terrazzo situati al piano primo, ideale per godere di momenti di relax all'aperto, magari gustando un buon caffè o ammirando il panorama circostante.
Inoltre, la casa dispone di un ampio giardino privato, perfetto per trascorrere piacevoli momenti in compagnia della famiglia e degli amici, per godere di una maggiore privacy.
In definitiva, questa casa indipendente in vendita a Rocchetta a Volturno è l'ideale per coloro che desiderano una residenza spaziosa, luminosa e personalizzabile, immersa nel verde del Parco Nazionale dAbruzzo, Lazio e Molise e lontana dallo stress della città.
	
    
    
    
        
        
            Condizioni economiche
            
                Contratto: Vendita
            
            
                Prezzo: 125'000€
            
            
                
                    Arredato: Non arredato
                
            
                
                    Libero: Si
                
            
         
        
            Informazioni principali
            
                Tipologia: Casa Indipendente
            
            
                Città: Rocchetta a Volturno
            
            
                
                    Superficie: 300 m²
                
            
                
                    N° locali: 2
                
            
                
                    Piano: Su due livelli
                
            
                
                    Giardino: Privato
                
            
         
        
            Efficenza energetica
            
                Classe energetica: 
            
            
		 
        
            
                Dati inserzione
                
                    ID Offrocasa.com: 10789597
                
                
                
                    Data inserimento: 16/06/2025
                
                
                    
                        Rif. Agenzia: 38931002-192
                    
                
             
        
	 
    
    
        
Casa Indipendente in Vendita a Rocchetta a Volturno, 125'000€, 300 m²