Quadrilocale in Vendita a Sannicola, 145'000€, 173 m²

Locali: 4
Bagni: 2
Camere: 2
Piano: 1
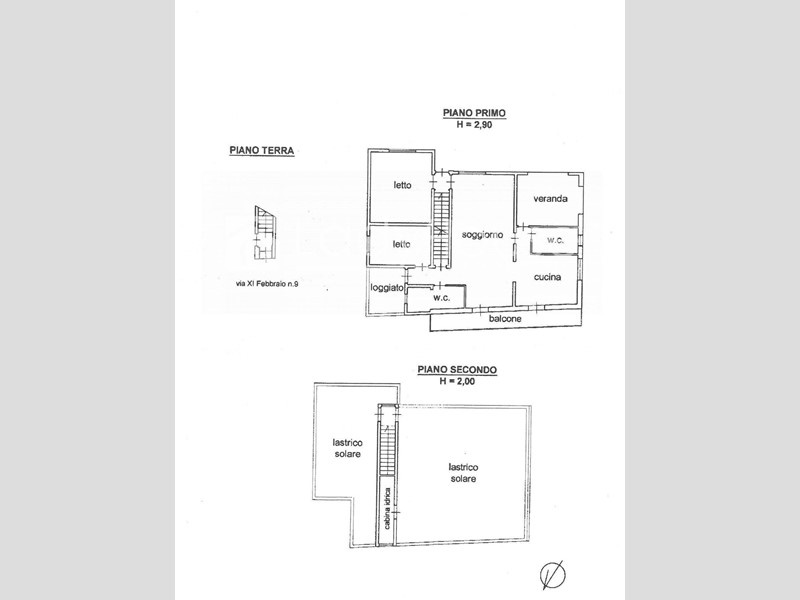
SANNICOLA AMPIO APPARTAMENTO IN CENTRO Puglia, Salento, Sannicola. Nel centro del paese e in zona ben servita, Lady House Immobiliare propone in vendita splendida soluzione indipendente posta al primo piano e in ottimo stato d’uso. L’immobile, di ampia metratura, è composto da: grande soggiorno con termo camino, cucina abitabile e annesso balcone con affaccio su strada, due camere da letto, doppi servizi, veranda e comodo terrazzino. A completare la proprietà un comodo lastrico solare. Possibilità di acquisto di posto auto e ascensore. Termo autonomo e climatizzato. Per info e/o appuntamento Tel 0833.18.21.211 / 380.470.54.31 e-mail: marketing@ladyhouseimmobiliare.it CHI SIAMO Lady House Immobiliare nasce dalla passione di professionisti che operano nel settore dell'intermediazione immobiliare da oltre 20 anni. Consulenti dedicati, leaders in Salento come PROPERTY FINDER, offriranno un supporto professionale per la ricerca del giusto investimento. Uno dei punti di forza del brand è la collaborazione tra agenti: i clienti avranno a disposizione non solo le offerte immobiliari proposte in sede, ma anche quelle gestite da altre agenzie. La pluriennale esperienza ha consentito di creare un vero e proprio contenitore di servizi a sostegno del cliente. La joint venture, con avvocati, tecnici, arredatori e home stager, permette di risolvere problematiche sempre più specifiche, in un mercato che cambia continuamente.

Condizioni economiche

Contratto: Vendita
Prezzo: 145'000€
Arredato: Arredato
Libero: Si

Informazioni principali

Tipologia: Quadrilocale
Città: Sannicola
Superficie: 173 m²
N° locali: 4
N° bagni: 2
N° Camere: 2
Piano: 1

Efficenza energetica

Classe energetica: G
Condizioni stabile: Molto buono
Riscaldamento: Autonomo

Dati inserzione

ID Offrocasa.com: 10786461
Data inserimento: 16/06/2025
Rif. Agenzia: LH_708B
Rif. Agenzia LH_708B

Lady House Srl

Via Lecce, 23/A - Gallipoli (Lecce)
08331821211
Richiedi Info dal form:
Accetto l'Informativa Privacy


Condividi

Lady House Srl

Via Lecce, 23/A - Gallipoli (Lecce)

Quadrilocale in Vendita a Sannicola, 145'000€, 173 m²

Chiama
Contatta