Terreno edificabile in Vendita a Moncalieri, 75'000€, 1290 m²

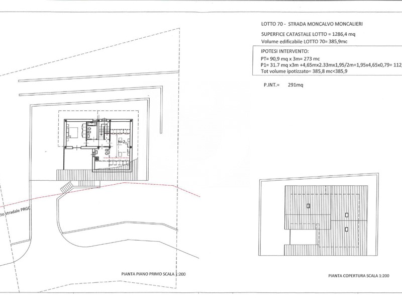
Moncalieri, in zona collinare, terreno di circa 1.290 mq, di cui densità fondiaria 0,3 mc, quindi volume edificabile 385,9 mc. Esiste una proposta di progetto preliminare, con relativo studio di fattibilità, per la realizzazione di una villa unifamiliare su tre livelli. Aggiornamenti catastali eventualmente in corso. Pertanto, tutti i dati sopra riportati non costituiscono elementi né presupposti contrattuali.

Condizioni economiche

Contratto: Vendita
Prezzo: 75'000€
Libero: Si

Informazioni principali

Tipologia: Terreno edificabile
Città: Moncalieri
Superficie: 1290 m²

Efficenza energetica

Classe energetica:

Dati inserzione

ID Offrocasa.com: 10783017
Data inserimento: 16/06/2025
Rif. Agenzia: 8958
Rif. Agenzia 8958

Chiusano Immobiliare

Via Pastrengo, 29 - Torino
0115682858
Richiedi Info dal form:
Accetto l'Informativa Privacy


Chiusano Immobiliare

Via Pastrengo, 29 - Torino

Terreno edificabile in Vendita a Moncalieri, 75'000€, 1290 m²

Chiama
Contatta