Casa Indipendente in Vendita a Manciano, 389'000€, 300 m²

Locali: 10
Bagni: 2
Camere: 5
Piano: Su più livelli
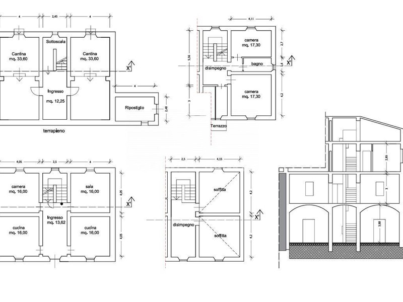
La Coldwell Banker propone in vendita un caratteristico palazzetto dei primi anni del '900, situato a Poggio Murella, paesino collinare a 3km dalle meravigliose terme di Saturnia e 2 km dal golf resort. Il palazzetto gode di un'ottima posizione, vicina ai servizi e ristoranti del paese, ma in posizione riservata e dominante, con vista sulle colline circostanti e litorale. Composto da tre livelli più la soffitta, l'immobile è di circa 300mq più un ampio giardino recintato di circa 500 mq, i pavimenti sono originali dell'epoca, soffitti a volta, infissi nuovi, impianti e bagni appena ristrutturati. Al piano terra troviamo il grande ingresso, cucina arredata con camino, soggiorno ampio con secondo camino, due camere da letto di cui una con il bagno interno. Al piano primo troviamo due camere da letto con un bagno, una terza piccola camera che possiamo adibire a bagno, studio o guardaroba. Al secondo piano abbiamo un pianerottolo e due soffitte con finestra. il piano giardino c'è un grande pianerottolo, due grandi sale con soffitti a volta in mattoncini e porte finestre che danno sul giardino, altro locale con accesso dall'esterno ora adibito a locale caldaia e ripostiglio. Il giardino è recintato con accesso carrabile e cancello di legno maremmano. Tutte le camere sono spaziose e luminose, grazie alle grandi finestre che offrono una vista panoramica sulle colline circostanti. La zona di Poggio Murella è rinomata per le sue sorgenti termali e offre anche numerose attività all'aperto, come trekking, mountain bike, wine tasting ed equitazione. In sintesi, il palazzetto in vendita a Poggio Murella (Saturnia), è un'ottima opportunità per chi desidera una casa spaziosa e ben curata, o per essere utilizzata come casa vacanze in una delle zone più suggestive della Toscana, distante solo 40 minuti dalla zona dell'argentario e ad un'ora e mezza dall'aeroporto di Fiumicino. Le presenti informazioni e planimetrie sono meramente indicative e non costituiscono elementi contrattuali.

Condizioni economiche

Contratto: Vendita
Prezzo: 389'000€
Arredato: Parzialmente arredato
Libero: Si

Informazioni principali

Tipologia: Casa Indipendente
Città: Manciano
Superficie: 300 m²
N° locali: 10
N° bagni: 2
N° Camere: 5
Piano: Su più livelli
Giardino: Privato

Efficenza energetica

Classe energetica:
Condizioni stabile: Molto buono
Riscaldamento: Autonomo

Dati inserzione

ID Offrocasa.com: 10782910
Data inserimento: 16/06/2025
Rif. Agenzia: CBI102-1126-10344
Rif. Agenzia CBI102-1126-10344

Imperiale Real Estate

Piazza Stefano Jacini, 2 - Roma
(+39) 06 53093961
Richiedi Info dal form:
Accetto l'Informativa Privacy


Imperiale Real Estate

Piazza Stefano Jacini, 2 - Roma

Casa Indipendente in Vendita a Manciano, 389'000€, 300 m²

Chiama
Contatta