Appartamento in Vendita a Jesi, 129'000€, 115 m²

Locali: 5
Bagni: 2
Camere: 3
Piano: 2
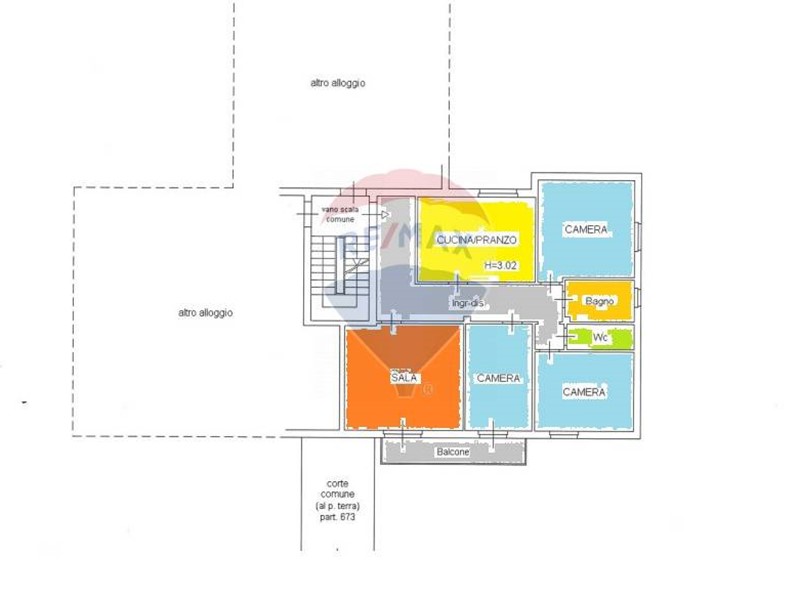
JESI- VIA FRIULI N.1: APPARTAMENTO PIANO II CON 3 CAMERE DA LETTO E DOPPI SERVIZI - BOX AUTO Ubicato in una palazzina degli anni '60 ben conservata, proponiamo un appartamento posto a secondo piano di mq 115 ca. composto da: ingresso, cucina abitabile, soggiorno con affaccio su balcone, 2 camere matrimoniali, cameretta, 1 bagno finestrato con ampia doccia ed ulteriore bagnetto di servizio. L'appartamento è stato recentemente ristrutturato: rifacimento degli infissi in alluminio con vetro termico, impianto elettrico e termico, caldaia, termosifoni in ghisa con valvole termostatiche; i bagni sono stati completamente restaurati ed è presente la predisposizione per un terzo servizio igienico all'interno di una delle camere matrimoniali. La proprietà ha conservato i pavimenti originari in marmo e le porte interne. Il portone d'ingresso è stato sostituito con un portone blindato. Dal balcone è possibile ammirare un suggestivo scorcio del centro storico di Jesi e del Monte San Vicino. Al piano terra, dalla corte condominiale, si raggiunge l'autorimessa, un box auto di circa mq 13. La zona è ricca di piccoli esercizi commerciali ed il centro è raggiungibile a piedi essendo a poca distanza.

Condizioni economiche

Contratto: Vendita
Prezzo: 129'000€
Spese condominiali: 30€

Informazioni principali

Tipologia: Appartamento
Città: Jesi
Superficie: 115 m²
N° locali: 5
N° bagni: 2
N° Camere: 3
Piano: 2
Box: Singolo

Efficenza energetica

Classe energetica: E
Ipe: 88,76 kwh_m2
Anno di costruzione: 1960
Condizioni stabile: Buono
Riscaldamento: Autonomo

Dati inserzione

ID Offrocasa.com: 10778362
Data inserimento: 16/06/2025
Rif. Agenzia: 31641008-514
Rif. Agenzia 31641008-514

RE/MAX Aequitas

Via Don A. Rettaroli, 19/ter - Jesi (Ancona)
0731710000
Richiedi Info dal form:
Accetto l'Informativa Privacy


RE/MAX Aequitas

Via Don A. Rettaroli, 19/ter - Jesi (Ancona)

Appartamento in Vendita a Jesi, 129'000€, 115 m²

Chiama
Contatta