Attico in Vendita a Paternò, 95'000€, 120 m²

Locali: 4
Bagni: 1
Camere: 2
Piano: 3
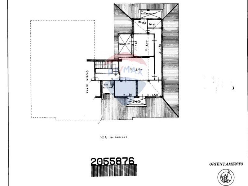
QUADRILOCALE TRIPLA ESPOSIZIONE PATERNO' - VIA GALILEO GALILEI, 20 In posizione strategica disponiamo di un delizioso appartamento mansardato di 3,5 vani parzialmente arredato con tripla esposizione. L'appartamento ha due ingressi ed è composto da un salone d'ingresso, cucina, studio, 2 camere da letto, un bagno, 2 terrazzini e una veranda, diversi ripostigli sottotetto. La Via Galileo Galilei si trova in posizione semicentrale e permette di raggiungere facilmente le principali vie di accesso e il centro del paese. La zona e tranquilla e al tempo stesso gode della vicinanza dei principali servizi che permettono una vita tranquilla e agiata. Pur essendo una mansarda gli spazi sono ben organizzati e la superficie dell'immobile è pienamente sfruttabile. Lo stato di ristrutturazione è buono quindi abitabile da subito. Abbiamo infissi in alluminio doppio vetrocamera, persiane in alluminio, che garantiscono un buon isolamento termico ed acustico. L'unità immobiliare è stata costruita giusta licenza edilizia n. 964 del 18 maggio 1974, variante del 26 febbraio del 1980 e autorizzazione del 6 maggio del 1980. A seguito di successive modifiche è stata rilasciata in data 26 aprile 2007 dal Comune di Paternò Concessione Edilizia in Sanatoria n. 2269. Certificato di agibilità/abitabilità n. 93 del 8 febbraio 2011. APPUNTAMENTI PREVIO CONTATTO TELEFONICO

Condizioni economiche

Contratto: Vendita
Prezzo: 95'000€
Arredato: Parzialmente arredato
Spese condominiali: 26€
Libero: Si

Informazioni principali

Tipologia: Attico
Città: Paternò
Superficie: 120 m²
N° locali: 4
N° bagni: 1
N° Camere: 2
Piano: 3

Efficenza energetica

Classe energetica: G
Ipe: 256,30 kwh_m2
Anno di costruzione: 1980
Condizioni stabile: Buono
Riscaldamento: Autonomo

Caratteristiche

Ascensore: Si

Dati inserzione

ID Offrocasa.com: 10776662
Data inserimento: 16/06/2025
Rif. Agenzia: 30721295-148
Rif. Agenzia 30721295-148

RE/MAX Platinum

Via Cesare Beccaria, 67 - Catania
095.7410271
Richiedi Info dal form:
Accetto l'Informativa Privacy


RE/MAX Platinum

Via Cesare Beccaria, 67 - Catania

Attico in Vendita a Paternò, 95'000€, 120 m²

Chiama
Contatta