Casa Indipendente in Vendita a Ferrara, 850'000€, 370 m²

Locali: 9
Bagni: 5
Camere: 4
Piano: Su due livelli
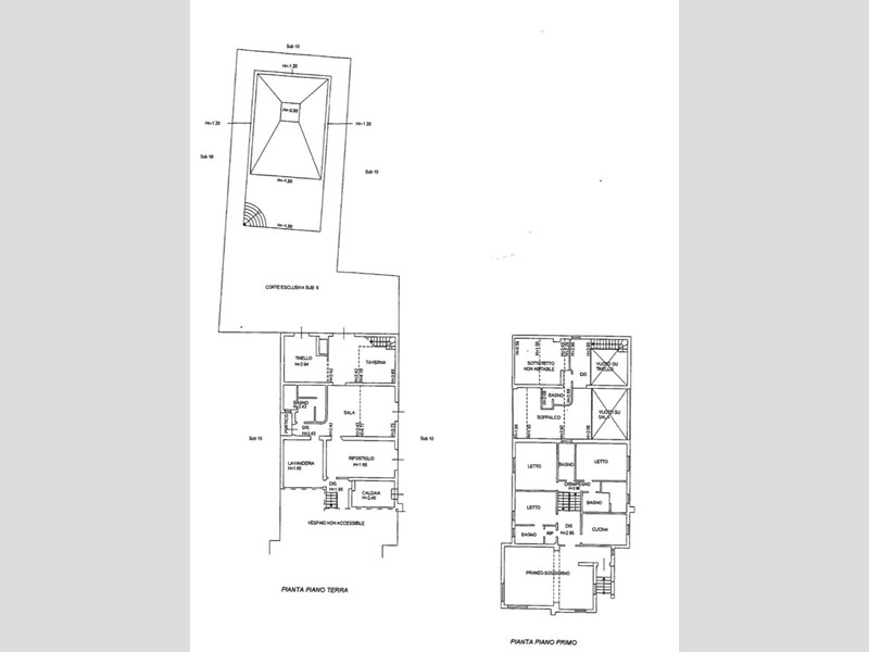
Splendida Villa composta da due unità abitative con giardino e piscina, in Vendita a Cocomaro di Focomarto (FE). La prima unità abitativa è disposta al piano primo e si compone di ingresso, grande soggiorno con zona pranzo, cucina abitabile, tre camere da letto, tre bagni e un ripostiglio. La seconda unità abitativa è disposta su due livelli, si compone al piano terra da ingresso, soggiorno, sala, cucina abitabile, un bagno con spogliatoi ad utilizzo della piscina, lavanderia e ripostiglio. Al piano superiore soppalco con zona notte e un bagno. Ripostiglio e vano caldaia. Giardino esclusivo di circa un ettaro. Piscina. Potete contattarci senza impegno per ricevere maggiori informazioni o per fissare un appuntamento per visionare questa Villa con piscina in vendita a Cocomaro di Focomorto (FE). COD.3768 € 850.000

Condizioni economiche

Contratto: Vendita
Prezzo: 850'000€

Informazioni principali

Tipologia: Casa Indipendente
Città: Ferrara
Superficie: 370 m²
N° locali: 9
N° bagni: 5
N° Camere: 4
Piano: Su due livelli
Cucina: Si
Giardino: Privato

Efficenza energetica

Classe energetica: G
Anno di costruzione: 1978
Condizioni stabile: Molto buono
Riscaldamento: Autonomo

Dati inserzione

ID Offrocasa.com: 10773208
Data inserimento: 16/06/2025
Rif. Agenzia: 3768
Rif. Agenzia 3768

PROGETTO CASA FERRARA

VIA SARACENO 44 - Ferrara
0532.212018
Richiedi Info dal form:
Accetto l'Informativa Privacy


PROGETTO CASA FERRARA

VIA SARACENO 44 - Ferrara

Casa Indipendente in Vendita a Ferrara, 850'000€, 370 m²

Chiama
Contatta