Appartamento in Vendita a Roma, 1'595'000€, 285 m²

Locali: 6
Bagni: 3
Camere: 5
Piano: 1
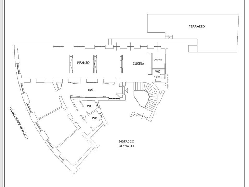
Less is more: nel quartiere Parioli, la casa è minimalista. La nostra prestigiosa residenza Luxury si colloca nel noto quartiere romano “Parioli”, proprio tra Villa Ada e Villa Borghese; territorio scelto come propria residenza, già dalla fine degli anni Quaranta, da numerose personalità di spicco in ambito culturale, artistico e politico. Quella che vi raccontiamo è una casa che si trova a un primo piano alto, di ampia superficie, dal design minimalista. L’atmosfera degli interni si fa rilassante e rigenerante attraverso l’equilibrio tra luci calde che creano particolari giochi di prospettive, i colori tenui del parquet rovere, gli arredi dalle tonalità pastello con finiture in acciaio, vetro e materiali Corian. La pianta della casa segue il curvo perimetro circolare/angolare dello stabile con una tripla esposizione Nord/Ovest/Est: sul lato destro del corridoio centrale d’ingresso troviamo il salone doppio, sala da pranzo, sala TV - o stanza ospiti - con parete mobile modulare, un’ampia cucina all’americana con isola centrale, zona servizi e lavanderia, balcone e la grande terrazza a livello con zona barbecue e salotto. Un'ulteriore ampia camera studio anticipa il disimpegno della zona notte – al lato sinistro del corridoio centrale – comprende altre due camere, due sale da bagno e un ripostiglio. Particolare è la scelta progettuale circa la suddivisione degli ambienti della zona giorno comunicanti tra loro ma intervallate da pareti centrali a contenitore di design, con la possibilità di isolamento di ciascuna camera attraverso porte a scomparsa e pareti mobili modulari. Tra le dotazioni vi è l'impianto di allarme e di condizionamento. Presente infine una comoda cantina di proprietà e la possibilità dell'affitto di un posto auto nel garage a pochi passi dall'abitazione. N.B. all'interno dell'annuncio sono presenti alcuni rendering della sola terrazza a fronte di un progetto di rimodernamento dello spazio esterno Less is More: A Minimalist Home in the Parioli District Our prestigious luxury residence is located in the renowned Roman neighborhood of Parioli, nestled between Villa Ada and Villa Borghese—an area that, since the late 1940s, has been the chosen residence of numerous prominent cultural, artistic, and political figures. The home we are presenting is a spacious, high first-floor apartment featuring a minimalist design. The interior atmosphere is both relaxing and rejuvenating, thanks to a harmonious balance of warm lighting that creates unique perspective effects, the soft tones of oak parquet, pastel-colored furnishings with steel finishes, as well as glass and Corian materials. The floor plan follows the curved and angular perimeter of the building, benefiting from a triple exposure (North/West/East). On the right side of the central entrance hallway, you will find a double living room, a dining area, a TV room—or guest room—with a modular mobile wall, a large American-style kitchen with a central island, a service and laundry area, a balcony, and a spacious terrace equipped with a barbecue area and lounge. An additional large study room leads to the sleeping area, located on the left side of the central hallway, which includes two more bedrooms, two bathrooms, and a storage room. A distinctive feature of this home is its thoughtfully designed layout, where the living spaces are interconnected yet separated by stylish central storage walls. Each room can also be isolated through retractable doors and modular mobile partitions, allowing for flexible use of space. Among the amenities are an alarm system and air conditioning. Additionally, the property includes a convenient private cellar and the option to rent a parking space in a nearby garage, just a short walk from the residence.

Condizioni economiche

Contratto: Vendita
Prezzo: 1'595'000€
Arredato: Parzialmente arredato
Spese condominiali: 300€
Libero: Si

Informazioni principali

Tipologia: Appartamento
Città: Roma
Superficie: 285 m²
N° locali: 6
N° bagni: 3
N° Camere: 5
Piano: 1
Cucina: Si
Esposizione: Nord-Ovest

Efficenza energetica

Classe energetica: G
Anno di costruzione: 1960
Condizioni stabile: Molto buono
Riscaldamento: Centralizzato

Caratteristiche

Ascensore: Si

Dati inserzione

ID Offrocasa.com: 10771821
Data inserimento: 16/06/2025
Rif. Agenzia: RESIDENZA PARIOLI
Rif. Agenzia RESIDENZA PARIOLI

L'IMMOBILIARE.COM ROMA PRATI

Via Baldo degli Ubaldi, 111 - Roma
06.3202717
Richiedi Info dal form:
Accetto l'Informativa Privacy


L'IMMOBILIARE.COM ROMA PRATI

Via Baldo degli Ubaldi, 111 - Roma

Appartamento in Vendita a Roma, 1'595'000€, 285 m²

Chiama
Contatta