Capannone in Vendita a Ripatransone, 310'000€, 1300 m²

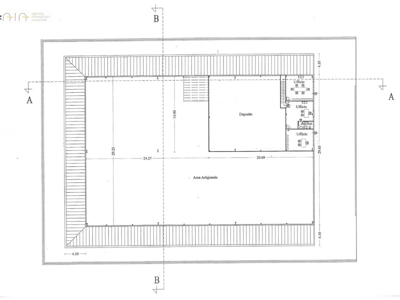
Capannone industriale smontato della superficie complessiva di circa mq 1300. Il fabbricato e' costituito da una struttura metallica e da pannelli in cls prefabbricato. L' altezza interna del manufatto, sotto trave e' di ml 7,25 e le dimensioni in pianta sono di ml 45 x ml 30. Il fabbricato e' dotato di elementi prefabbricati per la realizzazione di soppalco e di una pensilina perimetrale in struttura metallica della profondità di 4 ml. Il manufatto verrà posizionato all'interno di un lotto artigianale/industriale della dimensione di mq 2671. Ampio spazio di manovra esterna per accesso e transito di qualsiasi mezzo pesante. Sono da fare solo le opere di sottofondazione. Ottima soluzione per qualsiasi tipo di attività.

Condizioni economiche

Contratto: Vendita
Prezzo: 310'000€
Libero: Si

Informazioni principali

Tipologia: Capannone
Città: Ripatransone
Superficie: 1300 m²

Efficenza energetica

Classe energetica: NA - Non Applicabile
Condizioni stabile: Molto buono

Dati inserzione

ID Offrocasa.com: 10771388
Data inserimento: 16/06/2025
Rif. Agenzia: 33388
Rif. Agenzia 33388

Abitare Gruppo Immobiliare

Corso Giuseppe Mazzini n. 213 - San Benedetto del Tronto (Ascoli Piceno)
+39.0735577265
Richiedi Info dal form:
Accetto l'Informativa Privacy


Abitare Gruppo Immobiliare

Corso Giuseppe Mazzini n. 213 - San Benedetto del Tronto (Ascoli Piceno)

Capannone in Vendita a Ripatransone, 310'000€, 1300 m²

Chiama
Contatta