Terreno industriale in Vendita a Ripatransone, 310'000€, 2671 m²

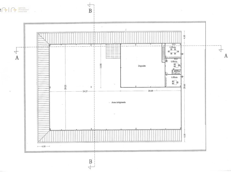
Lotto artigianale/industriale della superficie di mq 2671, comprensivo di Capannone smontato e tenuto a deposito, costituito da struttura metallica e pannelli in cls prefabbricato. Il capannone ha una dimensione interna di circa 1300 mq con h interna al di sotto della capriata di mq 7,25. Il fabbricato e' dotato anche di una pensilina perimetrale con struttura metallica della larghezza di circa 4,00 ml. Sono necessarie le opere di sottofondazione Ottima soluzione dei acquisto da adibire a qualsiasi tipo di attività.

Condizioni economiche

Contratto: Vendita
Prezzo: 310'000€
Libero: Si

Informazioni principali

Tipologia: Terreno industriale
Città: Ripatransone
Superficie: 2671 m²

Efficenza energetica

Classe energetica:

Dati inserzione

ID Offrocasa.com: 10771387
Data inserimento: 16/06/2025
Rif. Agenzia: 33387
Rif. Agenzia 33387

Abitare Gruppo Immobiliare

Corso Giuseppe Mazzini n. 213 - San Benedetto del Tronto (Ascoli Piceno)
+39.0735577265
Richiedi Info dal form:
Accetto l'Informativa Privacy


Abitare Gruppo Immobiliare

Corso Giuseppe Mazzini n. 213 - San Benedetto del Tronto (Ascoli Piceno)

Terreno industriale in Vendita a Ripatransone, 310'000€, 2671 m²

Chiama
Contatta