Bilocale in Vendita a San Benedetto del Tronto, 230'000€, 47 m²

Locali: 2
Bagni: 1
Camere: 1
Piano: 3
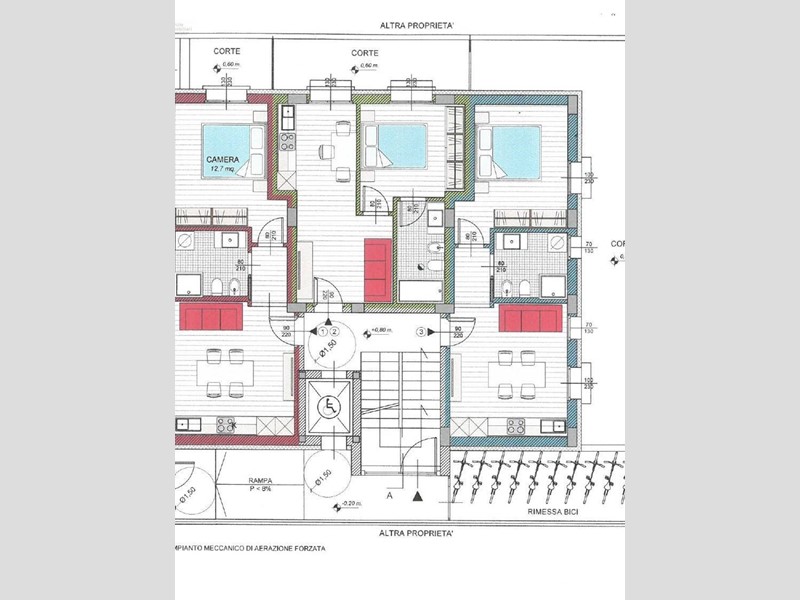
Appartamento al terzo delle dimensioni di 47 m² circa, composto da ingresso su soggiorno con angolo cottura, disimpegno nel reparto notte, una camera da letto matrimoniale, un bagno con finestra e doccia. L'appartamento è inoltre fornito di due balconi per un totale di 4 mq circa. L' unità immobiliare sarà realizzata in classe A, dotata di riscaldamento a pavimento, aria condizionata con due split per appartamento, sanitari sospesi, gli infissi saranno in pvc con doppio vetro e tapparelle elettriche, dotata di portoncino blindato e videocitofono. Tutte le pavimentazioni e rivestimenti saranno a scelta della parte acquirente, su capitolato messo a disposizione dall'impresa. Ogni unità immobiliare sarà dotata di n° 2 pannelli fotovoltaici di ultima generazione, installati sul tetto condominiale. L'unità immobiliare sarà realizzata con moderne tecniche costruttive, con risparmio energetico i massimi livelli. Inserito all'interno di un nuovo ed elegante fabbricato residenziale localizzato in una delle posizioni più comode e centrali di San Benedetto del Tronto, non lontano anche dalla spiaggia. Int. n 10 Le fotografie, degli interni, a corredo di questo annuncio comprendono dei rendering non specifici. I prezzi potrebbero subire delle variazioni.

Condizioni economiche

Contratto: Vendita
Prezzo: 230'000€
Libero: Si

Informazioni principali

Tipologia: Bilocale
Città: San Benedetto del Tronto
Superficie: 47 m²
N° locali: 2
N° bagni: 1
N° Camere: 1
Piano: 3
Esposizione: Est

Efficenza energetica

Classe energetica: A3
Ipe: 89,70 kwh_m2
Anno di costruzione: 2023
Riscaldamento: Autonomo

Caratteristiche

Ascensore: Si

Dati inserzione

ID Offrocasa.com: 10771236
Data inserimento: 16/06/2025
Rif. Agenzia: 31959
Rif. Agenzia 31959

La Mer

Via Dei Mille n.73 - San Benedetto del Tronto (Ascoli Piceno)
0735657858
Richiedi Info dal form:
Accetto l'Informativa Privacy


La Mer

Via Dei Mille n.73 - San Benedetto del Tronto (Ascoli Piceno)

Bilocale in Vendita a San Benedetto del Tronto, 230'000€, 47 m²

Chiama
Contatta