Villa in Vendita a Numana, 654'000€, 104 m²
        
    
        
    
        
    
    
        Villino indipendente, libero su tutti i lati, dislocato su due livelli e precisamente:
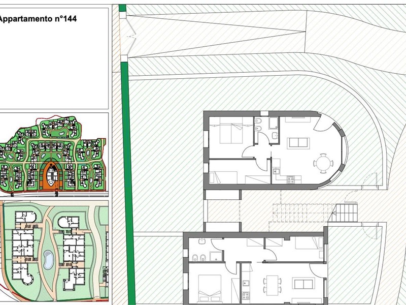
Piano terreno delle dimensioni di 52 m² circa, composto da ingresso su soggiorno con angolo cottura, sala da pranzo in vetrata, camera da letto matrimoniale, bagno con doccia e finestra.
Piano primo delle dimensioni di 52 m² circa, composto da due ampie camere da letto matrimoniali, bagno con doccia e finestra, corridoio nel reparto notte.
Piano secondo con meravigliosa terrazza solarium privata al piano superiore delle dimensioni di 53 mq circa, con vista del mare, allestita con cucina all'aperto e gazebo ombreggiante.
La divisione interna può anche essere variata e personalizzata dall'acquirente. 
Il villino è inoltre fornito di un giardino privato al piano terreno, completamente recintato, delle dimensioni di 110 m² circa. 
La residenza, di nuova costruzione dispone di ingresso completamente indipendente. Realizzato con rifiniture veramente di alto pregio come pavimentazione in parquet e gres porcellanato, infissi di alta qualità, impianto di climatizzazione caldo freddo, predisposizione con sistema domotica di controllo a distanza degli impianti dell'alloggio. 
Inserito all'interno del Costa Conero: un complesso residenziale completamente recintato localizzato in primissima prima fila sul mare, completo all'interno di ben sei piscine comuni a disposizione esclusiva, passeggiate, servizi. 
>> con sovrapprezzo di euro 10.000 è possibile acquistare un comodo posto auto scoperto per il parcheggio della vostra autovettura, all'interno di un'area completamente controllata.
>> nessuna commissione a carico dell'acquirente.
	
    
    
    
        
        
            Condizioni economiche
            
                Contratto: Vendita
            
            
                Prezzo: 654'000€
            
            
         
        
            Informazioni principali
            
                Tipologia: Villa
            
            
                Città: Numana
            
            
                
                    Superficie: 104 m²
                
            
                
                    N° locali: 5
                
            
                
                    N° bagni: 2
                
            
                
                    N° Camere: 3
                
            
                
                    Giardino: Privato
                
            
                
                    Esposizione: Sud-Ovest
                
            
         
        
            Efficenza energetica
            
                Classe energetica: A4
            
            
                
                    Anno di costruzione: 2023
                
            
                
                    Riscaldamento: Autonomo
                
            
		 
        
            
                Dati inserzione
                
                    ID Offrocasa.com: 10769252
                
                
                
                    Data inserimento: 16/06/2025
                
                
                    
                        Rif. Agenzia: 32592
                    
                
             
        
	 
    
    
        
Villa in Vendita a Numana, 654'000€, 104 m²