Appartamento in Vendita a Altare, 180'000€, 200 m²

Locali: 8
Bagni: 2
Camere: 4
Piano: Su due livelli
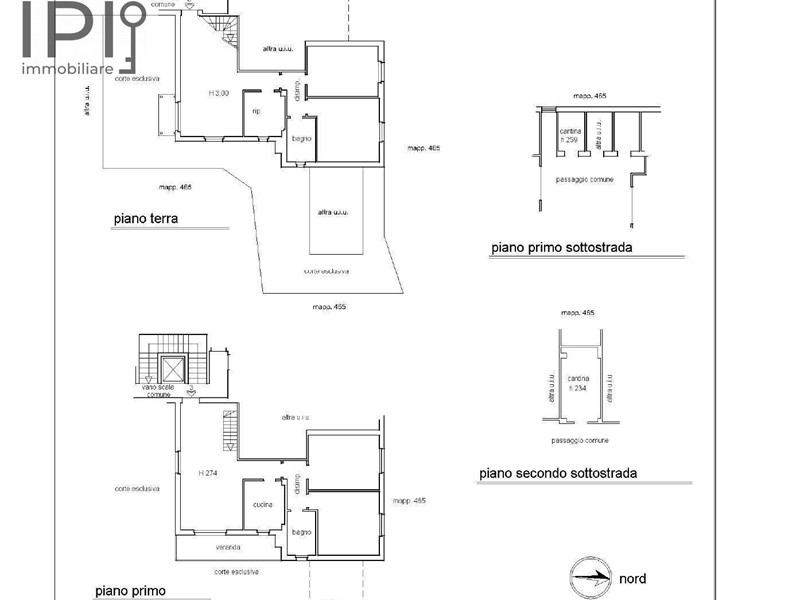
Bellissimo appartamento su due livelli in centro altare con giardino, terrazza, garage e due cantine. L'immobile nasce dall'unione di due appartamenti separati che possono quindi essere di nuovo divisi e ospitare due famiglie. Ingresso da piano rialzato con accesso sul salone doppio con affaccio sulla cucina abitabile. Dal salone si puo' arrivare alla grande terrazza piastrellata, mentre dalla cucina si giunge al giardino, con fasce di terreno, e dehor attrezzato con forno-barbecue. La zona notte è invece composta da due camere da letto e un bagno con finiture moderne e doccia grande. Con una bella scala a vista in legno, che parte dal salone, accesso al piano superiore che presenta la stessa forma del piano terreno. Ingresso su salone da cui si accede ad un bel terrazzo verandato, grande dispensa, due camere da letto e bagno. Infissi doppio vetro alluminio primo tipo, porte interne belle, finiture ricercate, pavimenti in piastrelle, gres, parquet nelle camere e bagni in marmo. Completa la proprietà un garage di dimensioni generose e due cantine. Ideale per famiglia numerosa o per due famiglie.

Condizioni economiche

Contratto: Vendita
Prezzo: 180'000€
Arredato: Non arredato
Spese condominiali: 116€
Libero: Si

Informazioni principali

Tipologia: Appartamento
Città: Altare
Superficie: 200 m²
N° locali: 8
N° bagni: 2
N° Camere: 4
Piano: Su due livelli
Box: Singolo
Cucina: Si
Giardino: Privato

Efficenza energetica

Classe energetica: G
Ipe: 300,00 kwh_m3
Anno di costruzione: 1970
Condizioni stabile: Buono
Riscaldamento: Autonomo

Caratteristiche

Ascensore: Si

Dati inserzione

ID Offrocasa.com: 10768197
Data inserimento: 16/06/2025
Rif. Agenzia: 5575
Rif. Agenzia 5575

Immobiliare IPI

Via Fratelli Francia, 26 - Cairo Montenotte (Savona)
0195090590
Richiedi Info dal form:
Accetto l'Informativa Privacy


Condividi

Immobiliare IPI

Via Fratelli Francia, 26 - Cairo Montenotte (Savona)

Appartamento in Vendita a Altare, 180'000€, 200 m²

Chiama
Contatta