Capannone in Vendita a Nereto, 227'000€, 2812 m²

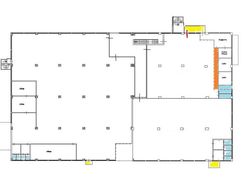
Locale al secondo piano ex laboratorio artigianale di manifatture ubicato all'interno di zona industriale, a 2 km. dalla cittadina e a 10 km. da uscita autostradale idoneo anche come locale ricreativo o direzionale altezza interna 350 cm. accesso per mezzo di 2 scale esterne e montacarichi condominiale con portata di 2.500 kg. cespite in portafoglio di Istituto di Credito

Condizioni economiche

Contratto: Vendita
Prezzo: 227'000€
Libero: Si

Informazioni principali

Tipologia: Capannone
Città: Nereto
Superficie: 2812 m²
Giardino: Privato

Efficenza energetica

Classe energetica: G

Dati inserzione

ID Offrocasa.com: 10767817
Data inserimento: 16/06/2025
Rif. Agenzia: 3104-2
Rif. Agenzia 3104-2

Euroimmobiliare di Valentini Adriano

Via Nervi 16 - Giulianova (Teramo)
0858004426
Richiedi Info dal form:
Accetto l'Informativa Privacy


Euroimmobiliare di Valentini Adriano

Via Nervi 16 - Giulianova (Teramo)

Capannone in Vendita a Nereto, 227'000€, 2812 m²

Chiama
Contatta