Casa Indipendente in Vendita a Castorano, 298'000€, 225 m², con Box

Locali: 6
Bagni: 2
Camere: 5
Piano: Su più livelli
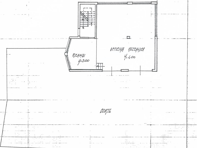
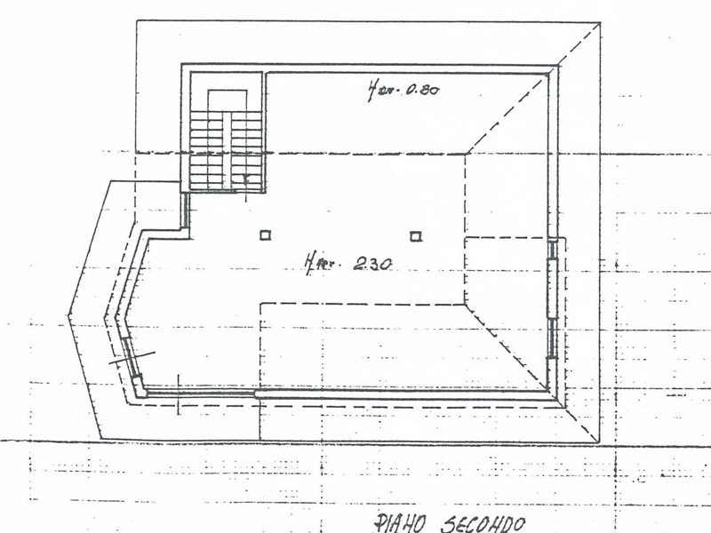
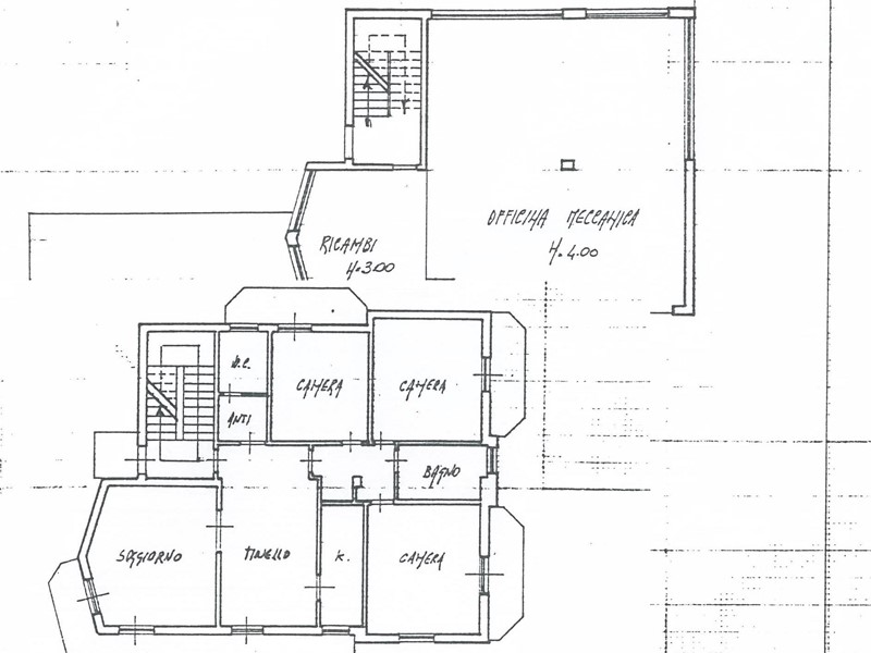
L’agenzia Re Casa Immobiliare propone in vendita casa singola a Castorano, con vista panoramica. Casa indipendente, di mq 225 con una corte di 2190 mq e costruita nel 1977 e in buono stato di conservazione. Situata in una zona tranquilla, questa residenza si trova in una posizione strategica, vicina a tutti i principali servizi e con un bellissimo panorama. Dislocata su tre livelli senza ascensore e precisamente: piano terra-seminterrato, piano primo, piano sottotetto: piano seminterrato, di mq 65 composta da cantina con camino; piano terra, di mq 120 composta da garage idoneo a rimessa grandi mezzi, con altezza di 4mt; piano primo di mq 120: ingresso su ampio soggiorno con camino, cucina abitabile ed angolo cottura, tre camere da letto matrimoniali, due bagni, e ripostiglio, ampi balconi su tutti i locali Piano sottotetto di mq 120; allestito come appartamento, con altezza massima 2,30 mt ed altezza minima 0,80 mt, composto da ampio salone con terrazzo panoramico lato sud, cucina abitabile, due ampie camere matrimoniale, uno studio/ripostiglio/cameretta, due bagni finestrati con vasca e doccia. Completa la proprietà una corte pavimentata ed un giardino per complessivi mq 2190, una struttura coperta di 30 mq, presente sul lato est, ad uso rimessa attrezzi. Il giardino è ben curato con alberi da fusto e da frutto ed ulivi. Internamente gli appartamenti sono rifiniti con pavimentazione in monocottura e ceramica, infissi in legno, con doppio vetro, persiane in alluminio, infissi in alluminio, impianti di riscaldamento termoautonomo, necessità di lavori di ristrutturazione in alcune parti degli intonaci. Soluzione idea per due nuclei familiari e per chi desidera vivere in campagna ma a pochi passi dal centro abitato e con una splendida vista mare e panoramica.

Condizioni economiche

Contratto: Vendita
Prezzo: 298'000€
Arredato: Parzialmente arredato
Libero: Si

Informazioni principali

Tipologia: Casa Indipendente
Città: Castorano
Superficie: 225 m²
N° locali: 6
N° bagni: 2
N° Camere: 5
Piano: Su più livelli
Box: Si
Posto auto: Si
Cucina: Si
Giardino: Privato
Esposizione: Sud-Ovest

Efficenza energetica

Classe energetica: D
Ipe: 16,87 kwh_m2
Anno di costruzione: 1990
Riscaldamento: Autonomo

Dati inserzione

ID Offrocasa.com: 10767046
Data inserimento: 16/06/2025
Rif. Agenzia: 9560
Rif. Agenzia 9560

Re Casa Immobiliare

Via San Francesco D'Assisi n. 13 b/c - San Benedetto del Tronto (Ascoli Piceno)
0735365467
Richiedi Info dal form:
Accetto l'Informativa Privacy


Re Casa Immobiliare

Via San Francesco D'Assisi n. 13 b/c - San Benedetto del Tronto (Ascoli Piceno)

Casa Indipendente in Vendita a Castorano, 298'000€, 225 m², con Box

Chiama
Contatta