Trilocale in Vendita a Canosa di Puglia, 165'000€, 100 m²

Locali: 3
Bagni: 2
Camere: 2
Piano: 1
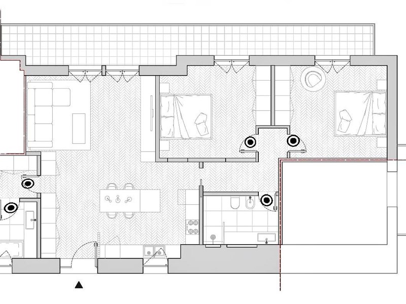
In via Kennedy angolo via Imbriani, proponiamo la vendita di un'appartamento su di un unico livello al primo piano composto da ampio living con cucina a vista, due camere da letto e bagno. La casa è da ristrutturare, ma avendo gli impianti separati e una corte interna da cui si accede la rendono indipendente. Ottimo per un'abitazione prestigiosa o uno studio associato, La casa ha già un progetto di ristrutturazione a prezzi accessibili, come mostrato nell'esempio delle foto.

Condizioni economiche

Contratto: Vendita
Prezzo: 165'000€
Libero: Si

Informazioni principali

Tipologia: Trilocale
Città: Canosa di Puglia
Superficie: 100 m²
N° locali: 3
N° bagni: 2
N° Camere: 2
Piano: 1

Efficenza energetica

Classe energetica: G
Condizioni stabile: Da restaurare

Dati inserzione

ID Offrocasa.com: 10765866
Data inserimento: 16/06/2025
Rif. Agenzia: R739a
Rif. Agenzia R739a

Soluzione Casa di Pinnelli Michele

via Kennedy, 2 - Canosa di Puglia (Barletta-Andria-Trani)
0883617620
Richiedi Info dal form:
Accetto l'Informativa Privacy


Soluzione Casa di Pinnelli Michele

via Kennedy, 2 - Canosa di Puglia (Barletta-Andria-Trani)

Trilocale in Vendita a Canosa di Puglia, 165'000€, 100 m²

Chiama
Contatta