Terreno edificabile in Vendita a Villorba, 2400 m²

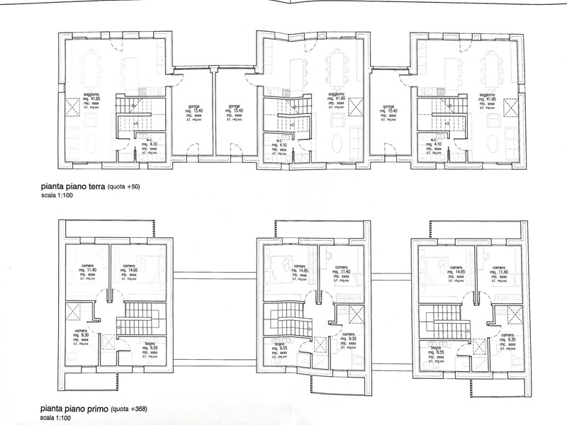
OTTIMO INVESTIMENTO PER IMPRESA DI COSTRUZIONI Vendesi lotto di terreno edificabile, in lottizzazione di 2.400 mc nel Comune di Villorba. Comodo a tutti i principali servizi quali centro commerciale, strada Pedemontana Veneta e fabbrica Benetton. Le opere di urbanizzazione sono già state eseguite. Gli oneri dei fabbricati sono già stati versati a scomputo delle opere. Tutti i sottoservizi ed i posti auto pubblici sono già stati eseguiti. È stata fatta una bozza di progetto per la realizzazione di due trifamiliari o altrimenti si possono eseguire due palazzine di 5/6 appartamenti ciascuna. Per entrambe, è presente la bozza di progetto. VIENE ACCETTATA UNA PERMUTA TOTALE, ANCHE CON CONGUAGLIO A FAVORE!!

Condizioni economiche

Contratto: Vendita
Prezzo: Prezzo su richiesta
Libero: Si

Informazioni principali

Tipologia: Terreno edificabile
Città: Villorba
Superficie: 2400 m²

Efficenza energetica

Classe energetica:

Dati inserzione

ID Offrocasa.com: 10765810
Data inserimento: 16/06/2025
Rif. Agenzia: 99T
Rif. Agenzia 99T

Premier Casa Immobiliare di Marzia Ingoglia e C. s.a.s.

Via Sant'Elena n 89 - Silea (Treviso)
0422.1834495
Richiedi Info dal form:
Accetto l'Informativa Privacy


Premier Casa Immobiliare di Marzia Ingoglia e C. s.a.s.

Via Sant'Elena n 89 - Silea (Treviso)

Terreno edificabile in Vendita a Villorba, 2400 m²

Chiama
Contatta