Villa in Vendita a Paese, 580'000€, 195 m²

Locali: 4
Bagni: 3
Camere: 3
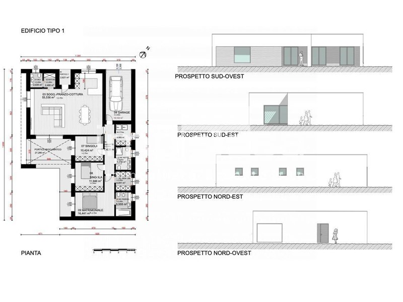
Villa singola in unico piano a Paese. Nella frazione di Postioma, sono in corso di realizzazione queste splendide soluzioni indipendenti, stile moderno, tecnologia e comfort. La costruzione, interamente in cemento armato, offre, oltre alla solidita' strutturale, un elevato livello di benessere abitativo, raggiunto grazie a tecnologie realizzative d'avanguardia. I generosi spazi interni comprendono una zona soggiorno/pranzo/cottura di circa 56 mq, tre camere, tre bagni di cui uno ad uso esclusivo della camera matrimoniale cosi come il guardaroba, il locale tecnico oltre al garage. Prospicente la zona giorno, troviamo un ampio portico bioclimatico, coperto e separato da un meraviglioso serramento "solo vetro". Il riscaldamento è a pavimento, il raffrescamento canalizzato e totalmente nascosto, vi è l'impianto di ventilazione meccanica, i serramenti sono in Legno/Alluminio con triplo vetro. Impianto fotovoltaico da 6 Kw ampliabili, spazi esterni curati e studiati per offrire la massima privacy, ultime finiture interne personalizzabili. Classe energetica A+. Per informazioni ed eventuali visite su queste splendide unita' indipendenti in corso di costruzione a Postioma di Paese chiamare il N. 0422/454323 con riferimento I/LF231 oppure consultate il nostro sito www.impresaimmobilare.com

Condizioni economiche

Contratto: Vendita
Prezzo: 580'000€
Libero: Si

Informazioni principali

Tipologia: Villa
Città: Paese
Superficie: 195 m²
N° locali: 4
N° bagni: 3
N° Camere: 3
Box: Singolo
Giardino: Privato

Efficenza energetica

Classe energetica:
Riscaldamento: Autonomo

Dati inserzione

ID Offrocasa.com: 10758831
Data inserimento: 16/06/2025
Rif. Agenzia: I/LF231
Rif. Agenzia I/LF231

impREsa Paese

Via Roma 148 - Paese (Treviso)
0422454323
Richiedi Info dal form:
Accetto l'Informativa Privacy


impREsa Paese

Via Roma 148 - Paese (Treviso)

Villa in Vendita a Paese, 580'000€, 195 m²

Chiama
Contatta