Monolocale in Vendita a Roma, 129'000€, 50 m²

Locali: 1
Bagni: 1
Camere: 1
Piano: Terra
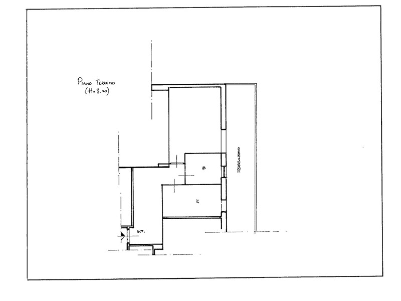
Nel cuore del quartiere Aurelio, nelle immediate adiacenze di Boccea, più precisamente in Via Gregorio XI, proponiamo la vendita di un'accogliente monolocale con terrazzo di circa 50 mq. Situato al piano terra di uno stabile signorile, l'immobile è composto da ingresso, cucinotto con accesso ad uno splendido terrazzo pavimentato, ampia camera da letto e bagno finestrato. L'appartamento, luminoso ed esposto a Nord-Est, dispone di infissi in alluminio/doppio-vetro, con grate alle finestre, e riscaldamento centralizzato. L'immobile si presenta da ristrutturare e, grazie alla sua ampia metratura e distribuzione degli spazi, offre la possibilità di essere ristrutturato per diventare un grazioso bilocale. In zona ben servita, questo appartamento offre la comodità di avere tutti i servizi di prima necessità a portata di mano (bar, ristoranti, farmacie, negozi e molto altro). La posizione è ideale grazie alla vicinanza immediata alle stazioni della Metropolitana Cornelia e Battistini, che permettono di raggiungere il centro storico di Roma. Ottimo anche come uso investimento.

Condizioni economiche

Contratto: Vendita
Prezzo: 129'000€
Arredato: No

Informazioni principali

Tipologia: Monolocale
Città: Roma
Superficie: 50 m²
N° locali: 1
N° bagni: 1
N° Camere: 1
Piano: Terra
Cucina: Cucinotto

Efficenza energetica

Classe energetica:
Anno di costruzione: 0
Riscaldamento: centralizzato

Dati inserzione

ID Offrocasa.com: 10757540
Data inserimento: 13/06/2025
Rif. Agenzia: Cod. rif 3241753VRG
Rif. Agenzia Cod. rif 3241753VRG

Professionecasa

Via Alessandria 99 - Roma
06/83964319
Richiedi Info dal form:
Accetto l'Informativa Privacy


Professionecasa

Via Alessandria 99 - Roma

Monolocale in Vendita a Roma, 129'000€, 50 m²

Chiama
Contatta